Eladó családi ház Budapest XVIII. ker 144 900 000 Ft

Leírás

XVIII. kerület, CSENDES, ÚJ kertvárosias részén ÚJ ÉPÍTÉSŰ családi ház ELADÓ!

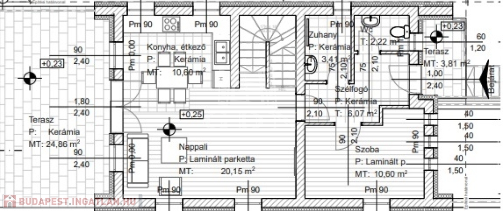
A három szintes otthonhoz tartozik egy 57,81 m2-s garázs, tároló, gépészet, elektromos garázsajtóval, 24,86 m2-s terasz, és egy 3,81 m2-s erkély. A nettó 53,5 m2 -es Földszinten egy tágas amerikai-konyha nappali, zuhanyzó, külön mosdó, hálószoba, közlekedő, előszoba, a nettó 45,57 m2-es emeleten 4 hálószoba, melyből az egyik beépített gardróbbal kialakított, fürdő-mosdóval, közlekedő található. A 3,35 m2-s erkélyre az egyik hálószobából tudunk kijutni.
Főfalai Porotherm 30 NF, válaszfalak Porotherm 10 NF.
Az épület központi fűtését padlófűtés körök fogják biztosítani. A fűtési csőhálózat anyaga térhálósított Pe, melyek padlóban lesznek elhelyezve. A fűtési körök elosztását osztó-gyűjtő szerelvények fogják biztosítani körönkénti szabályozással. A fűtési rendszer hőellátását a létesítendő levegő/víz hőszivattyú fogja biztosítani.
A tervezett épületben a megújuló energiát felhasználó berendezés az épület fűtését és használati meleg-víz termelését biztosító levegő/víz hőszivattyú.
Tető fedése cseréphéjazat.

Jelenleg 60% készültségi fokú az építkezés. Mindhárom szint elkészült, tetővel, pinceszint teljes vízszigetelése megtörtént. Villanyszerelési munkák elkezdődtek.


Átadás: Adás-vétel szerződéstől számítva 4-5 hónap.

A Tulajdonos beszámít Budapest területén garzonlakást, illetve építési telket Budapesten és 30 km-es vonzáskörzetében!

CSOK PLUSZ, kedvezményes hitel felvehető!
Amennyiben felkeltettem érdeklődését. keressen bizalommal!
Ha nem veszem fel, visszahívom!
ID: 382467

Családi ház részletei

Ár: 144 900 000 Ft
Méret: 144 négyzetméter
Azonosító: 11610380
Irodai azonosító: 382467
Cím: Olaszfa utca
Telek: 427 négyzetméter
Ingatlan állapota: Kitűnő
Jelleg: családi ház
Építőanyag: Tégla
Fűtés jellege: Geotermikus
Fűtés módja: Hőszivattyú
Komfort fokozat: Dupla komfort
Kor: 1-5 éves
Szintek száma: 2 szint
Egész szobák: 5
Fél szobák: 1

Egyéb jellemzők

  • Csatorna
  • Garázs
  • Pince
  • Terasz

Térkép


Így keressen budapesti ingatlant négy egyszerű lépésben. Csupán 2 perc, kötelezettségek nélkül!

Szűkítse a budapesti ingatlanok
listáját
Válassza ki a megfelelő
budapesti ingatlant
Írjon a hirdetőnek
Várjon a visszahívásra