Eladó családi ház Budapest XVIII. ker 139 990 000 Ft

Leírás

Kizárólag a Fodor Ingatlanközvetítő Kft. portfóliójában!

ELADÓ ÚJ ÉPÍTÉSŰ, 2 SZINTES, KLASSZIKUS IKERHÁZ MINDKÉT LAKÁSA, XVIII.KERÜLET FERIHEGY RÉSZÉN, 541 NM-ES TELKEN LAKÁSONKÉNT 270M2-ES TELEK RÉSSZEL. AZ ÉPÜLET A SZIGORÚ KÖRNYEZETVÉDELMI ÉS ENERGETIKAI ELVÁRÁSOKNAK MEGFELEL!

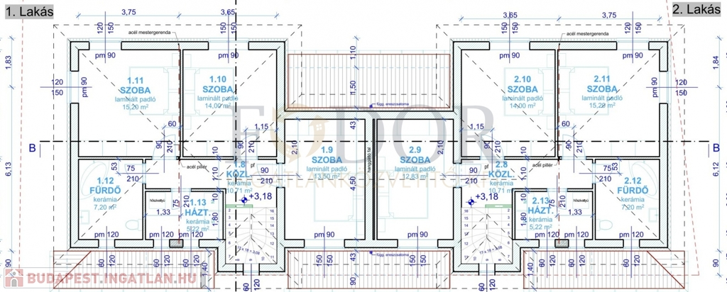
A lakások hasznos lakóterülete 119m2. Amerikai-konyhás nappalin kívül 3 külön bejáratú hálószobával rendelkezik. Nappalija közvetlen kertkapcsolatos, 12 nm-es terasz és 20 nm-es garázs-tároló tartozik a lakásokhoz.

Az építkezés még nem kezdődött el, várható kezdés 2026. májusa, a befejezés 2027. első negyedévében várható. Az ingatlan minden tekintetben meg fog felelni a mai kor elvárásainak. Burkolatok, szaniterek, beltéri ajtók választhatóak. A lakás fűtése és melegvíz ellátása levegő-víz hőszivattyúval készül, amely 210 l-es melegvíz tartályt is tartalmaz. A lakás hűtése 1 db inverteres hűtő-fűtő klímával lesz megoldott.

Lakások ára egységesen 139.990.000.- Forint!

Műszaki tartalom:
• 30-as főfal, 10 cm-es tégla válaszfalak, 10 cm grafitos homlokzati és 30 cm födémszigetelés.
• Vasbeton sávalap.
• Fehér, műanyag tokos, 3 rétegű, több légkamrás, thermo üvegezésű nyilászárók, elektromos redőny, motorizálásra előkészítve.
• Hőszivattyú, klíma.
• Antracit vagy barna színű cserép, készültségi fok függvényében választható.

A lakások közt 2 x 20 cm Silka hanggátló tégla, azok közt pedig 4 cm légrés van, valamint tetőszerkezetük is teljesen önálló. Ezáltal mind a két lakás jogosult a 3% - os Otthon Start hitelre!

Elrendezés:
Földszint:
Előtér, terasz kapcsolatos nappali, étkező-konyha, kamra, zuhanyzós fürdőszoba, garázs és az emeletre vezető lépcső.

Emelet:
Három külön nyíló hálószoba, egy fürdőszoba és egy háztartási helyiség.

Tulajdonságok:
• Privát kerítéssel elválasztott saját telekrész.
• Elektromos kapu előkészítés és hőszigetelt, szekcionált garázs ajtó és motor az árban.
• Teljes riasztó rendszer, kezelő egységgel együtt.

AZ ÁRAK KULCSRAKÉSZ ÁLLAPOTRA VONATKOZNAK! JELENLEG MÉG MINDKÉT LAKÁS KERESI BOLDOG TULAJDONOSÁT!

A környék infrastruktúrája kiváló, minden kiszolgáló egység és tömegközlekedés pár perc sétára megtalálható.

Irodánk teljes körű segítséget nyújt:
•díjmentes hitelügyintézés
•CSOK Plusz tanácsadás
• banki partneri háttér a vásárlás minden lépésében

Az alaprajz és a leírás kizárólag tájékoztató jellegű.

Ne maradjon le erről az igazán különleges lehetőségről – hívjon bizalommal!

Családi ház részletei

Ár: 139 990 000 Ft
Méret: 119 négyzetméter
Azonosító: 11613859
Irodai azonosító: 352415
Telek: 270 négyzetméter
Ingatlan állapota: Kitűnő
Jelleg: ikerház
Építőanyag: Tégla
Komfort fokozat: Összkomfort
Kor: Új építésű
Egész szobák: 4

Egyéb jellemzők

  • Garázs
  • Terasz

Így keressen budapesti ingatlant négy egyszerű lépésben. Csupán 2 perc, kötelezettségek nélkül!

Szűkítse a budapesti ingatlanok
listáját
Válassza ki a megfelelő
budapesti ingatlant
Írjon a hirdetőnek
Várjon a visszahívásra