Eladó családi ház Budapest XVII. ker 149 900 000 Ft

Leírás

Eladó új építésű ikerházak XVII.KERÜLET DINAMIKUSAN FEJLŐDŐ, ÚJ PARCELLÁZÁSÚ MELLÉKUTCÁJÁBAN. – A tökéletes választás modern családok számára!

AZ ÉPÍTKEZÉS ELKEZDŐDÖTT!!!!

Fedezze fel ezt a lenyűgöző, kétszintes ikerházat, amely a XVII. kerület csendes mellékutcájában várja új tulajdonosát. A két lakás külön bejárattal, saját utcafronttal és egyedi telek-résszel rendelkezik, garantálva a privát életérzést.

A lakás jellemzői:
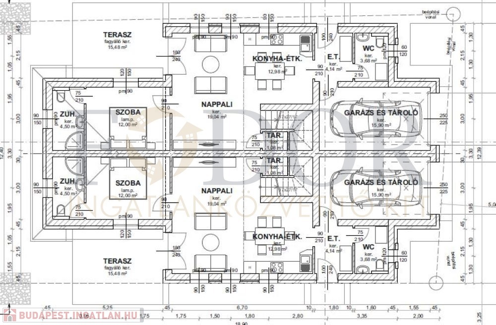
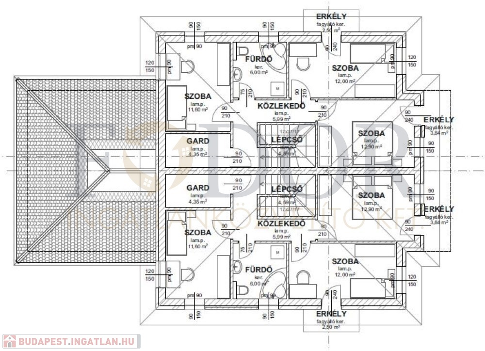
• Hasznos lakóterület: 114,85 m² – Tágas amerikai konyhás nappalik, 4 külön be-járatú hálószoba és gardróbszoba.
• Két szint, két fürdőszoba, 15 m²-es terasz és 2,5 m², 3,8 m²-es erkélyek a pihenéshez.
• Szintenként padlófűtés, fürdőszobákban törölközőszárítós radiátorok.
• 16 m²-es garázs és elektromos kapu előkészítéssel.
• Kertkapcsolatos nappali a pihenés és a szórakozás jegyében.
• Hőszivattyús rendszer, modern energia hatékony megoldások

Minőségi kivitelezés, prémium alapanyagok:
• 30 cm-es főfal + 15 cm homlokzati szigetelés a maximális energiahatékonyságért.
• A lakások között dupla SILKA hangátlófallal lesz elválasztva, garantálva az egymástól levő elszeparálódást.
• 3 rétegű hő- és hangszigetelt nyílászárók a kellemes belső klímáért.
• Műanyag redőny előkészítés, modern szekcionált garázsajtó.
• Térkövezett kocsibejáró és személyi bejáró, az egész ház körül.

A jelű lakás bruttó 130 m2, 15 m2 terasz, 2,5, 3,8 m2 erkély, 400 m2 privát telekterület 149,9 Millió Forint
B jelű lakás bruttó 130 m2, 15 m2 terasz, 2,5, 3,8 m2 erkély, 400 m2 privát telekterület 149,9 Millió Forint

Emelt műszaki tartalommal az ingatlanok ára:159,9 Milló Forint.

Környék:
• Kiváló infrastruktúra: Minden fontos szolgáltatás, iskola, bevásárlóközpont, és tő-megközlekedési lehetőség pár perc sétára.


Az ár a kulcsrakész állapotra vonatkozik, az Ön igényei szerint választhatóak burkolatok, szaniterek, és beltéri ajtók.

Keressen minket bizalommal, és kérjen bővebb tájékoztatást!

Hívjon most, és tekintse meg személyesen!

IRODÁNK INGYENES HITEL ÜGYINTÉZÉSSEL, TANÁCSADÁSSAL, SZÁMOS BANK AJÁNLATÁVAL ÉS AZ ÚJ CSOK FOLYÓSÍTÁSÁVAL VÁRJA ÜGYFELEIT.

Családi ház részletei

Ár: 149 900 000 Ft
Méret: 130 négyzetméter
Azonosító: 11572277
Irodai azonosító: 342472
Telek: 400 négyzetméter
Ingatlan állapota: Kitűnő
Jelleg: ikerház
Építőanyag: Tégla
Komfort fokozat: Dupla komfort
Kor: Új építésű
Egész szobák: 5

Egyéb jellemzők

  • Garázs
  • Terasz

Így keressen budapesti ingatlant négy egyszerű lépésben. Csupán 2 perc, kötelezettségek nélkül!

Szűkítse a budapesti ingatlanok
listáját
Válassza ki a megfelelő
budapesti ingatlant
Írjon a hirdetőnek
Várjon a visszahívásra