Eladó családi ház Budapest XVII. ker 123 500 000 Ft

Leírás

ELADÓ ÚJ ÉPÍTÉS ikerház A KÖZKEDVELT AKADÉMIAÚJTELEPEN A 17.KERÜLETBEN.

AZONNAL KÖLTÖZHETŐ!

A lakáshoz tartozó telek területe 200 m2

Gépkocsi beálló 19,22 m2
Terasz 9,52 m2
Belépő 1,84m2
Lakás alapterülete 88,14 m2

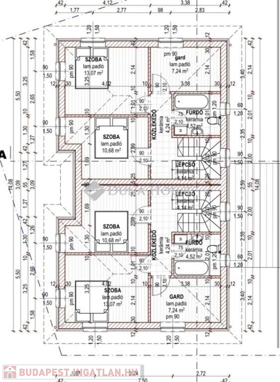
Kialakítása :

földszinten: nappali, konyha+étkező, fürdő+wc, közlekedő, tároló, nyitott terasz 9.52m2

emeleten: szoba, fürdő+wc, közlekedő

Roppant világos, kiváló helyen helyezkedik el, szép házak közelében.

EXTRÁK: elektromos kapu, klíma ,prémium minőségű burkolatok Fűtése elektromos kazán illetve 1 db 80 L-es elektromos bojler fürdőszoba falán elhelyezve.
Áram: 3x16 A H tarifa 1x32

SOK REFERENCIA MUNKÁT TUDOK MUTATNI, TÖBB MINT 20 ÉVES TAPASZTALATTAL RENDELKEZIK A KIVITELEZŐ.

Amennyiben felkeltettem érdeklődését, várom hívását .

További információért hívjon bizalommal!!

Közelben: Helikopter út, Madárdomb, Buszmegálló Vásárlását szakszerű tanácsadással segítjük, hitel ügyintézés lebonyolítása egy helyen.

Családi ház részletei

Ár: 123 500 000 Ft
Méret: 88 négyzetméter
Azonosító: 11557877
Irodai azonosító: HZ078829-5012518
Cím: Eladó 88 nm-es ház Budapest 17. ker.
Telek: 200 négyzetméter
Ingatlan állapota: Épülő
Jelleg: ikerház
Építőanyag: Tégla
Fűtés jellege: Egyéb
Kor: Új építésű
Szintek száma: Földszintes
Egész szobák: 4

Térkép


Így keressen budapesti ingatlant négy egyszerű lépésben. Csupán 2 perc, kötelezettségek nélkül!

Szűkítse a budapesti ingatlanok
listáját
Válassza ki a megfelelő
budapesti ingatlant
Írjon a hirdetőnek
Várjon a visszahívásra