Eladó családi ház Budapest XVII. ker 123 500 000 Ft

Leírás

ELADÓ ÚJ ÉPÍTÉSŰ ikerház A KÖZKEDVELT AKADÉMIAÚJTELEPEN A 17.KERÜLETBEN.

AZONNAL KÖLTÖZHETŐ 4 szobás ingatlan!

A lakáshoz tartozó telek területe: 200 m2
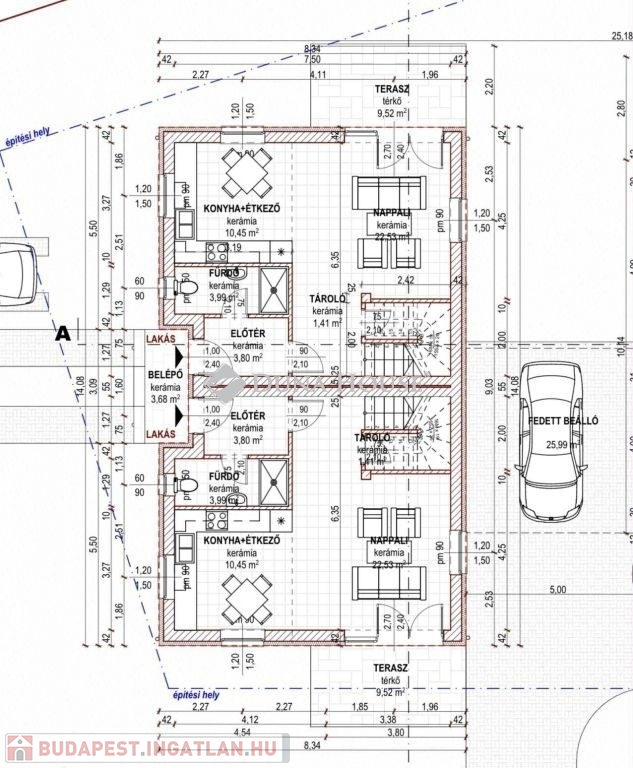
Gépkocsi beálló 19,22 m2

Terasz 9,52 m2
Belépő 1,84m2
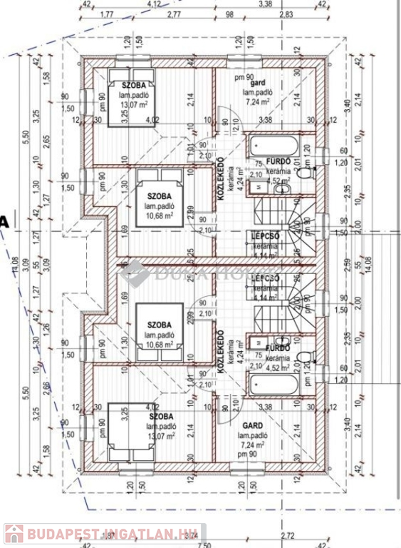
Lakás alapterülete 88,14 m2

kialakítása földszinten: nappali, konyha+étkező, fürdő+wc, közlekedő, tároló, nyitott terasz 9.52m2
emeleten: 3 szoba, fürdő+wc, közlekedő

Roppant világos, kiváló helyen helyezkedik el, szép házak közelében.

EXTRÁK: elektromos kapu, klíma ,prémium minőségű burkolatok

Fűtése: elektromos kazán illetve 1 db 80 L-es elektromos bojler fürdőszoba falán elhelyezve.


Áram: 3x16 A H tarifa
1x32 A


SOK REFERENCIA MUNKÁT TUDOK MUTATNI, TÖBB MINT 20 ÉVES TAPASZTALATTAL RENDELKEZIK A KIVITELEZŐ.


Amennyiben felkeltettem érdeklődését, várom hívását .

További információért hívjon bizalommal!!

Közelben: Helikopter út, Madárdomb, Buszmegálló

Vásárlását szakszerű tanácsadással segítjük, hitel ügyintézés lebonyolítása egy helyen.

Családi ház részletei

Ár: 123 500 000 Ft
Méret: 88 négyzetméter
Azonosító: 11552134
Irodai azonosító: HZ078829-4993310
Cím: Budapest 17. ker.i eladó 88 nm-es ház
Telek: 200 négyzetméter
Ingatlan állapota: Épülő
Jelleg: ikerház
Építőanyag: Tégla
Fűtés jellege: Egyéb
Kor: Új építésű
Szintek száma: Földszintes
Egész szobák: 4

Térkép


Így keressen budapesti ingatlant négy egyszerű lépésben. Csupán 2 perc, kötelezettségek nélkül!

Szűkítse a budapesti ingatlanok
listáját
Válassza ki a megfelelő
budapesti ingatlant
Írjon a hirdetőnek
Várjon a visszahívásra