Eladó családi ház Budapest XVI. ker 349 900 000 Ft

Leírás

ÁLMAI OTTHONA ÉPÜL SZENTGYÖRGYTELEPEN!

Eladó egy 300 m²-es, 6 szobás, luxus okos otthon Budapest XVI. kerületének egyik legcsendesebb mellékutcájában – 1078 m²-es, parkosított telken!

ÚJ ÉPÍTÉSŰ, KÖRBEJÁRHATÓ, ENERGIA HATÉKONY OTTHON – MINDEN IGÉNYT KISZOLGÁL!



Főbb jellemzők:

• 30-as Porotherm tégla falazat + 20 cm prémium hőszigetelés (REVCO)

• A+ energetikai besorolás, „H” tarifa kiépítve

• Modern hőszivattyús fűtés padlófűtéssel + törölközőszárító radiátorok

• 6 db hűtő-fűtő klíma az árban

• Elektromos autótöltés előkészítve

• Napelem rendszer előkészítés

• Motoros, távirányítós redőnyök + szúnyoghálók

• Okos otthon rendszer – riasztó, kamerák, mozgásérzékelők

• Luxus burkolatok – egyedileg választhatók a kivitelezővel egyeztetve



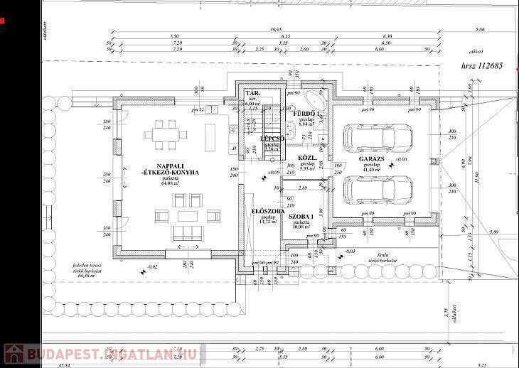
Tökéletes elrendezés – világos, élhető terek!

Földszint:

• Tágas előszoba

• Amerikai konyhás nappali + étkező

• 1 szoba

• Fürdőszoba mellékhelyiséggel

• Közlekedő

• Kétállásos, 40 m²-es garázs

• Kerti terasz

Emelet:

• 4 külön nyíló szoba

• 2 fürdőszoba (kád + zuhanyzó + WC)

• Külön mosókonyha

• Tágas közlekedő

• Tetőterasz



Parkolás:

• 2 autó számára garázs



• További 3–4 autó számára beállási lehetőség a telken belül



Lokáció – kiváló közlekedés, nyugodt környezet:

• Pár perc sétára: 7G, 46, 130, 996 A buszok

• Csendes, zöldövezeti környezet, mégis gyorsan elérhető belváros



Finanszírozás:

• Hitelre is megvásárolható

• CSOK támogatás igénybe vehető

• Díjmentes, bankfüggetlen hitelügyintézés – egyedi kedvezményekkel



Ára: 349,9 M Ft

Átadás várhatóan: 2026. I. negyedév

Ne maradjon le róla! Kérjen még ma időpontot a megtekintésre!

Vevőink számára a közvetítés DÍJMENTES!



Ez a luxusingatlan nem csupán egy ház, hanem egy életstílus.

Költözzön a jövőbe – kényelmesen, okosan, kompromisszumok nélkül!





Családi ház részletei

Ár: 349 900 000 Ft
Méret: 300 négyzetméter
Azonosító: 11580590
Irodai azonosító: 23917
Telek: 1078 négyzetméter
Ingatlan állapota: Épülő
Jelleg: családi ház
Építőanyag: Kérdezzen rá a hirdetőtől »
Fűtés jellege: Egyéb
Egész szobák: 6

Így keressen budapesti ingatlant négy egyszerű lépésben. Csupán 2 perc, kötelezettségek nélkül!

Szűkítse a budapesti ingatlanok
listáját
Válassza ki a megfelelő
budapesti ingatlant
Írjon a hirdetőnek
Várjon a visszahívásra