Eladó családi ház Budapest XVI. ker 253 500 000 Ft

Leírás

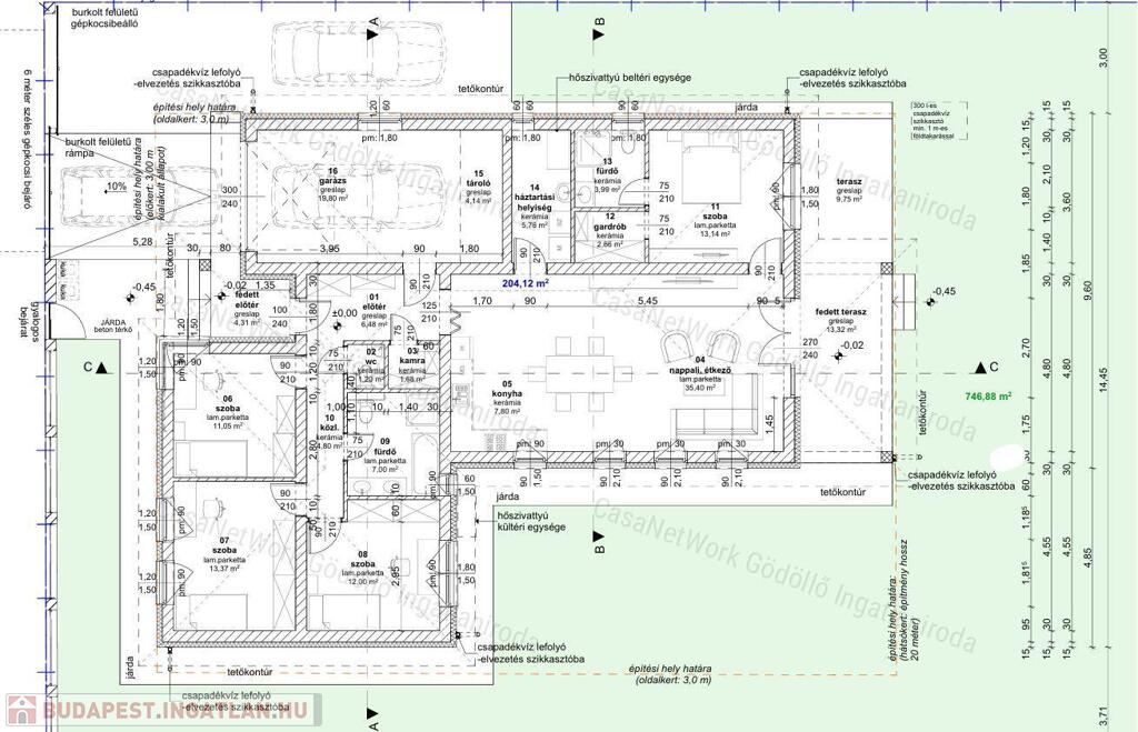
CasaNetWork Gödöllő Ingatlaniroda kínálatában eladó családi ház Budapest XVI. kerület

Modern, energiatakarékos családi ház eladó a kertváros nyugodt részén – Rákoskeresztúr, Budapest XVI. kerület.

Csendes, rendezett, igényes családi házas környezetben kínálunk megvételre egy új építésű, modern kialakítású családi házat, amelyet referenciákkal rendelkező, megbízható kivitelező épít.
Kulcsrakész átadás várhatóan az ősz végén.

Az ingatlan praktikus, családbarát alaprajzzal készül, ahol minden négyzetméter jól kihasznált.

Főbb jellemzők:

  • 4 szoba
  • tágas amerikai konyhás nappali
  • szülői/vendég háló saját fürdőszobával és WC-vel, valamint gardróbbal
  • praktikus kamra, a garázs közelében
  • kényelmes garázs, ahol további tároló kialakítására is van lehetőség

A nappaliból és a szülői/vendég hálóból közvetlen kijárat nyílik a 23 m²-es, részben fedett, nyugati fekvésű teraszra, amely tökéletes helyszíne lehet családi pihenésnek vagy baráti grillezéseknek.

A házhoz közel 800 m²-es zöldterület tartozik, amely bőséges helyet biztosít kertnek, játszótérnek vagy akár medencének is.

Műszaki tartalom nagy vonalakban:

  • 30 cm Porotherm falazat
  • 15 cm külső hőszigetelés
  • hőszivattyús fűtésrendszer
  • padlófűtés minden helyiségben
  • 3×12 A elektromos áramellátás

Nyílászárók és komfort:

  • színezett műanyag nyílászárók
  • rejtett redőnytok
  • elektromos redőny és szúnyogháló előkészítés

Előkészített kényelmi rendszerek:

  • riasztórendszer előkészítés
  • internet bekötési lehetőség
  • kapucsengő előkészítés
  • kapunyitó automatika kiépítésének lehetősége

Az ingatlan ápolást nem igénylő kerítéssel készül, így a karbantartási igény minimális.















Ez a ház ideális választás azoknak a családoknak, akik modern, energiatakarékos otthont keresnek nagy kerttel, nyugodt kertvárosi környezetben.

Várható kulcsrakész átadás: 2026. év vége

Hívjon most! Ez egy különleges ajánlat, le ne maradjon róla! Ingyenes hitel tanácsadással, ügyvédi kapcsolattal és rugalmas időbeosztással állunk kedves ügyfeleink rendelkezésére! CASANETWORK - Ingatlanban otthon vagyunk

Családi ház részletei

Ár: 253 500 000 Ft
Méret: 164 négyzetméter
Azonosító: 11605237
Irodai azonosító: 166401968
Telek: 1075 négyzetméter
Ingatlan állapota: Kitűnő
Jelleg: családi ház
Építőanyag: Tégla
Komfort fokozat: Dupla komfort
Egész szobák: 5

Így keressen budapesti ingatlant négy egyszerű lépésben. Csupán 2 perc, kötelezettségek nélkül!

Szűkítse a budapesti ingatlanok
listáját
Válassza ki a megfelelő
budapesti ingatlant
Írjon a hirdetőnek
Várjon a visszahívásra