Eladó családi ház Budapest XVI. ker, Cinkota, 179 000 000 Ft

Leírás

ÚJSZERŰ, PRÉMIUM IKERHÁZ ELADÓ XVI. kerületben – SAJÁT KERTTEL, GARÁZZSAL!

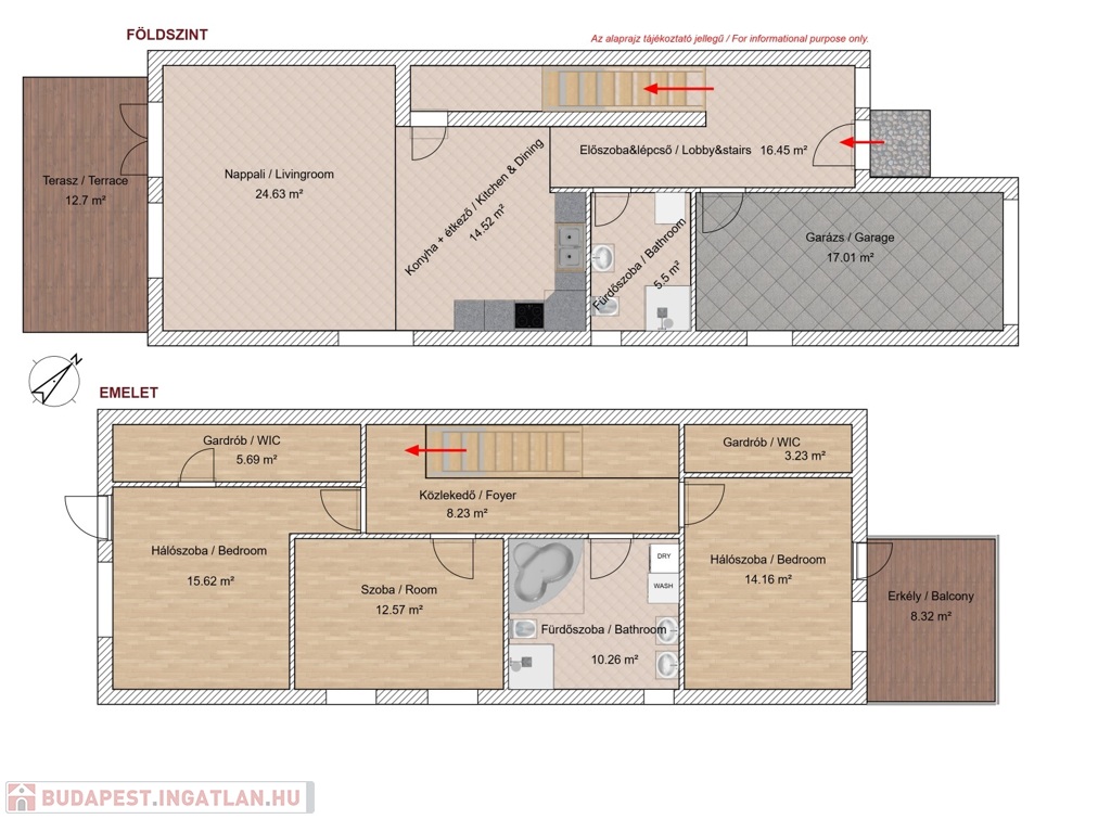
Bruttó alapterület: 179 m²
425 m² saját kert
20 m² garázs az árban
4 szoba + étkező-konyha + 2 fürdő + 2 gardrób + kamra
Építés éve: 2024 – azonnal költözhető!

Amit kínál ez az otthon:

Duplakomfort: 2 fürdőszoba, 2 wc, zuhanyzó + kád, minden szinten mosógép csatlakozással
Kényelmes elrendezés: 3 tágas hálószoba (12–17 m²), világos nappali, gardrób szoba, kamra
Energiahatékony fűtés-hűtés: Gáz kombi cirkó padlófűtéssel és radiátorral
Hőszivattyús hűtő-fűtő klíma
3 rétegű, aranytölgy fóliás nyílászárók
15 cm cellulóz szigetelés (hőhídmentes, nyáron sem forrósodik át)
Parkolás: garázs és térkövezett beálló

Extrák:

prémium Hörmann beltéri ajtók
alumínium redőnyök szúnyoghálóval
3x16A (ipari áram – autótöltő is csatlakoztatható)
prémium vízálló padló
3 terasz (földszinti, emeleti tetőterasz, erkély – összesen 36 m²)

Környék:

Nyugodt, kertvárosi utca
Kiváló közlekedés: HÉV-megálló 700 m-re (5 perc gyalog)
Óriási, 10 hektáros zöld pihenőpark 120 m-re
Kulturált, csendes szomszédság

Tökéletes választás családoknak, akik modern, energiatakarékos, fenntartható otthont keresnek saját kerttel, kiváló környezetben.

Hívjon most, hogy Öné legyen ez a páratlan ingatlan még a nyár vége előtt!
Érdeklődni és időpontot egyeztetni hétvégén is hívhat!

#ikerházeladó #cinkota #újépítésű #ingatlanbudapest #kertesház #garázzsal #alacsonyrezsi #Apluszenergia #hőszivattyú #budapestingatlan #eladóház #családiház

Családi ház részletei

Ár: 179 000 000 Ft
Méret: 179 négyzetméter
Azonosító: 11555388
Városrész: Cinkota
Telek: 425 négyzetméter
Ingatlan állapota: Újszerű
Jelleg: ikerház
Építőanyag: Tégla
Fűtés jellege: Hőszivattyú
Fűtés módja: Hőszivattyú
Komfort fokozat: Dupla komfort
Kor: 1-5 éves
Elhelyezkedés: Utcafronti
Szintek száma: 2 szint
Bútorozott: Nem bútorozott
Egész szobák: 4
Nappalik: 1

Egyéb jellemzők

  • Beépíthető tetőtér
  • Csatorna
  • Garázs
  • Melléképület
  • Padlás
  • Pince
  • Terasz

Térkép


Így keressen budapesti ingatlant négy egyszerű lépésben. Csupán 2 perc, kötelezettségek nélkül!

Szűkítse a budapesti ingatlanok
listáját
Válassza ki a megfelelő
budapesti ingatlant
Írjon a hirdetőnek
Várjon a visszahívásra