Eladó családi ház Budapest XVI. ker 149 900 000 Ft

Leírás

Sokoldalú lehetőség Cinkotán – vállalkozóknak, befektetőknek, nagycsaládosoknak!

Eladásra kínálunk Budapest XVI. kerületének egyik legkedveltebb, kertvárosi részén, Cinkotán, egy kiváló adottságokkal rendelkező, nettó 232 m²-es családi házat, különálló, korábban húsüzemként működő melléképülettel – ez utóbbi a tulajdonos információi szerint kb. 140 m²-es, és sokféle funkcióra átalakítható.

A ház háromszintes kialakítású (pince, földszint, emelet), összesen 6 szobával, hálófülkével és gardróbbal, valamint két fürdőszobával és toalettel. A földszinten egy tágas, jól felszerelt konyha található. A pincében dupla garázs kapott helyet, amelyhez fűtőszálas jégmentesítő rendszerrel ellátott lejáró tartozik – praktikus és kényelmes megoldás a téli hónapokra.

Az összközműves ingatlan egy 850 m²-es, rendezett telken helyezkedik el, a különálló melléképület energiaellátását pedig napelemek is támogatják, így a rezsiköltségek hosszú távon is kedvezők.

Főbb méretek:

Bruttó alapterület: 307 m²

Nettó lakóterület: 232 m²

Pince: 46,75 m²

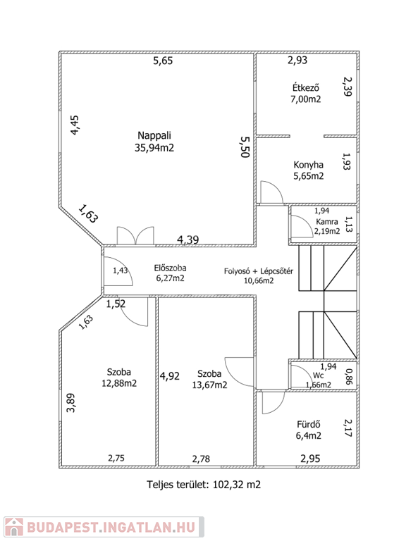
Földszint: 102,32 m²

Emelet: 83,03 m²

A ház ideális választás többgenerációs családoknak, de vállalkozóknak is kiváló – az önálló épület alkalmas lehet műhelynek, irodának, raktárnak vagy akár autószerviznek is.

Infrastruktúra? Kiváló! Könnyen megközelíthető, nyugodt környezet, mégis közel mindenhez, amire szükség lehet.

Ne hagyja ki ezt a sokoldalúan hasznosítható ingatlant!
Hívjon most a megtekintésért – akár hétvégén is elérhetőek vagyunk.

Finanszírozási igény esetén partnerünk segítségével a teljes banki kínálatból választhat, így megtalálhatja a legkedvezőbb hitelmegoldást is!

Családi ház részletei

Ár: 149 900 000 Ft
Méret: 232 négyzetméter
Azonosító: 11543528
Irodai azonosító: 383797
Cím: Szakoly utca
Telek: 805 négyzetméter
Ingatlan állapota: Átlagos
Jelleg: családi ház
Építőanyag: Tégla
Fűtés jellege: Cirkó
Fűtés módja: Gáz
Komfort fokozat: Összkomfort
Kor: 21-50 éves
Szintek száma: 2 szint
Egész szobák: 6

Egyéb jellemzők

  • Csatorna
  • Garázs
  • Pince
  • Terasz

Térkép


Így keressen budapesti ingatlant négy egyszerű lépésben. Csupán 2 perc, kötelezettségek nélkül!

Szűkítse a budapesti ingatlanok
listáját
Válassza ki a megfelelő
budapesti ingatlant
Írjon a hirdetőnek
Várjon a visszahívásra