Eladó családi ház Budapest XV. ker 89 000 000 Ft

Leírás

XV. kerület, Baksay Sándor utcában eladó tehermentes, 90 nm-es, 3,5 szoba + hallos, bővíthető, jelen állapotában is lakható, de igény szerint felújítandó önálló családi ház 748 nm-es, autóbeállóval rendelkező telken.

A ház a telek hátsó, az utcától távolabbi részén épült meg, így csendes és a privát tér is adott.
A fafödémes tetőtér nincs beépítve és egy külső lépcsőn megközelíthető.

Az ingatlan Lk-1/HZT-1 övezetbe tartozik, 14 méteres utcafrontja van, 4 lakásos társasház is építhető rá vagy jelen állapotában átalakítható, bővíthető.

A szabályos téglalap alakú telken gyümölcsfák, ásott kút és 2 felépítmény (tároló és a háztól független fedett terasz) található, ezek igény szerint átalakíthatók.

A homlokzaton 10 cm-es szigetelés van.
A fűtést gázkazán (és két elektromos kályha), a melegvizet villanybojler biztosítja.
Az ablakok egy része korábban műanyagra lett cserélve, de nagyrészük az eredeti fa.

Szobákban megkímélt parketta, vizes helyiségekben és előszobában járólap a padlóburkolat.

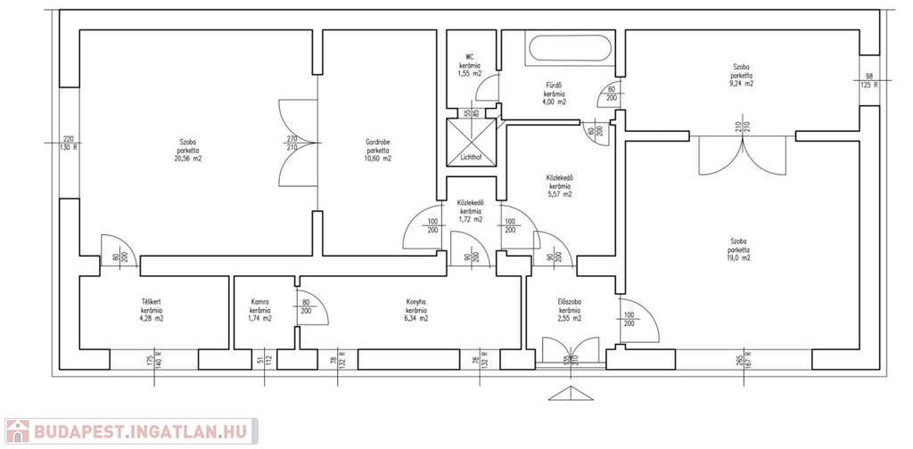
Az ingatlan pontos beosztása a videón és az alaprajzon is megtekinthető.

A bejárat, az egyik szoba, a télikert (félszoba) és a konyha délnyugati tájolású.

Tömegközlekedés:
A háztól 4 percnyi sétára áll meg a 25-ös busz, ami 11 perc alatt jut el a mexikói úti kisföldalattihoz (további 11 perc alatt pedig a városközpontba, a Deák térre is eljuthatunk).
Szintén pár perc alatt az 5-ös buszhoz is eljuthatunk, ami 30 percen belül jut el az Astoriára, érintve pl Zugló vasútállomást, a Keleti pályaudvart és a Blaha Lujza teret is), a 124-es busszal pedig 20 perc alatt jutunk el a Bosnyák térre.

Üzletek:
Az ingatlanhoz közel található rendelőintézet, gyógyszertár, illetve játszótér is van az utcában.
A Pólus Center 4 percre van autóval.

Családi ház részletei

Ár: 89 000 000 Ft
Méret: 90 négyzetméter
Azonosító: 11577050
Cím: Baksay Sándor utca
Telek: 748 négyzetméter
Ingatlan állapota: Átlagos
Jelleg: családi ház
Építőanyag: Tégla
Fűtés jellege: Cirkó
Komfort fokozat: Összkomfort
Kor: 50 évesnél régebbi
Elhelyezkedés: Udvari
Szintek száma: Földszint + tetőtér
Bútorozott: Bútorozott
Egész szobák: 3
Fél szobák: 1
Nappalik: 1

Egyéb jellemzők

  • Beépíthető tetőtér
  • Csatorna
  • Garázs
  • Melléképület
  • Padlás
  • Parketta
  • Pince
  • Medence

Térkép


Így keressen budapesti ingatlant négy egyszerű lépésben. Csupán 2 perc, kötelezettségek nélkül!

Szűkítse a budapesti ingatlanok
listáját
Válassza ki a megfelelő
budapesti ingatlant
Írjon a hirdetőnek
Várjon a visszahívásra