Eladó családi ház Budapest XI. ker 385 000 000 Ft

Leírás

Budapest XI. kerületben a Madárhegyen, luxus ingatlan eladó!

Madárhegy új építésű övezetében, a Rozsdafarkú utcában, három szintes, minden igényt kielégítő, 4+1 szobás, nappalis ingatlan eladó.

A telek területe 660 m2, melyen egy 227 m2 hasznos területű lakóház áll. Délnyugati fekvésének köszönhetően rendkívül világos. A ház külső falazata 30-as Porotherm téglából épült. 15 cm vastagságú, Austrotherm grafit hőszigetelést kapott. Az épület vízszigetelése Techfoil TF15 vízszigetelővel megoldott.

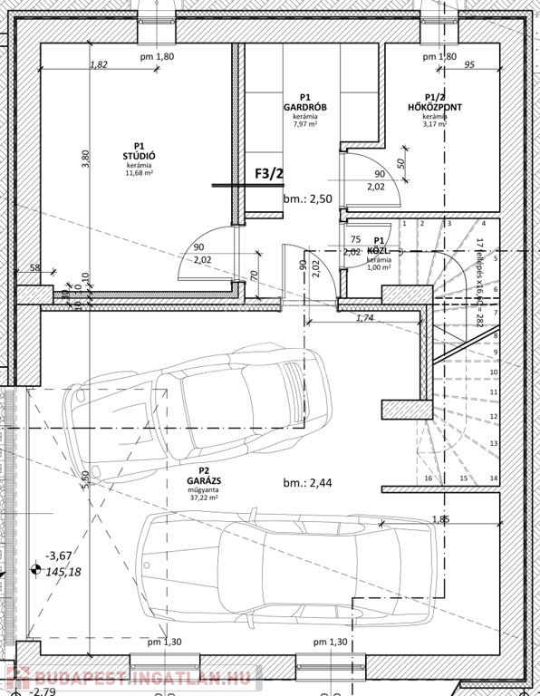
Az alsó szint kétállásos garázs, közlekedő, hangszigetelt dolgozó szoba, gépház tagozódású.
A földszinten található az amerikai konyhás nappali, gardrób, kamra, zuhanyzós fürdőszoba. A nappali közvetlen kapcsolatban van egy 22 m2 területű terasszal. Konyhája egyedi építésű konyhabútorral beépített, benne Bosh típusú konyhagépekkel, melyek az ár részét képezi.
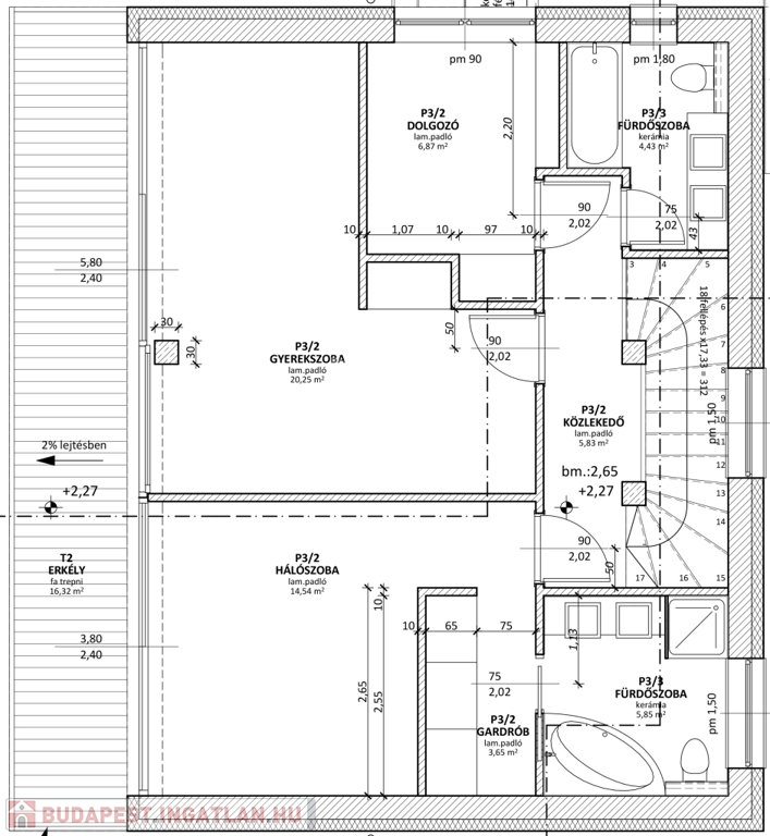
Az emelet hálószoba, gardróbszoba, gyermekszoba, dolgozó szoba és két fürdőszoba kiépítésű. A fürdőszobák kádas/zuhanyzós, illetve sarokkádas kialakításúak. A háló és gyermek szobából az épületen végig húzódó 16 m2 területű, panorámás teraszra léphetünk.

Az ingatlan benapozottságának védelmében a ablakok távirányítható, alumínium, külső zsaluziákkal szereltek. A lakás hűtésről és fűtésről hőszivattyú gondoskodik. További komfortosításra is van lehetőség, mivel napelem telepítéséhez, riasztó rendszer kiépítéséhez az előkészítő folyamatok el lettek végezve. A kábelezés adott. Kertje parkosított, egzotikus növényekkel betelepített, esőérzékelős locsolórendszerrel telepített.

Az ingatlan saját projektben készült, a felhasznált alapanyagok prémium minőségűek.


AMENNYIBEN NEM RENDELKEZIK A TELJES VÉTELÁRRAL, segítünk Önnek megtalálni a legjobb megoldást! BANKFÜGGETLEN hitelcentrumunk minden elérhető bank és hitelintézet ajánlatát versenyezteti az Ön kedvéért, ráadásul díjmentesen. Önnek nincs más dolga, mint elbeszélgetni munkatársunkkal, aki a hallott információk alapján versenyre hívja a bankokat, hogy Ön hosszú távon is a legjobb konstrukciót kaphassa. A legjobb ajánlatokból végül Ön választhatja ki a nyertest. Munkatársaink sokéves szakmai tapasztalattal várják Önt, előre egyeztetve akár a normál munkaidő után is.

További információkért állok rendelkezésére
ZZs.

Családi ház részletei

Ár: 385 000 000 Ft
Méret: 227 négyzetméter
Azonosító: 11479804
Irodai azonosító: 378265
Cím: Új építésű övezetben
Telek: 630 négyzetméter
Ingatlan állapota: Átlagos
Jelleg: családi ház
Építőanyag: Tégla
Fűtés jellege: Egyedi
Komfort fokozat: Luxus komfort
Kor: Új építésű
Szintek száma: 2 szint
Egész szobák: 4
Fél szobák: 1

Egyéb jellemzők

  • Csatorna
  • Garázs
  • Pince
  • Terasz

Térkép


Így keressen budapesti ingatlant négy egyszerű lépésben. Csupán 2 perc, kötelezettségek nélkül!

Szűkítse a budapesti ingatlanok
listáját
Válassza ki a megfelelő
budapesti ingatlant
Írjon a hirdetőnek
Várjon a visszahívásra