Eladó családi ház Budapest X. ker 159 900 000 Ft

Leírás

Új építésű, kétszintes ikerház prémium felszereltséggel és bútorzattal

Csendes környezet – Magas minőségű kivitelezés – Teljes digitális átláthatóság!

Budapest X. kerületének egyik legnyugodtabb mellékutcájában, kiváló közlekedési és infrastrukturális adottságok mellett készül ez a korszerű, kétszintes ikerház.
Az építkezés teljes folyamata átláthatóan nyomon követhető!

Főbb adatok


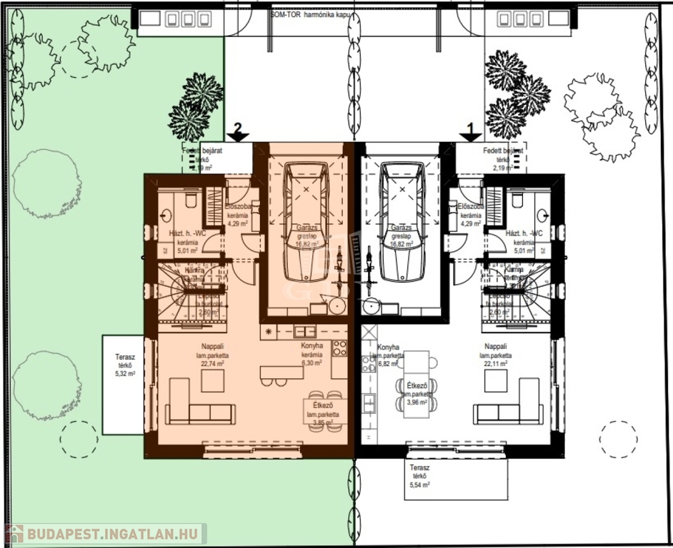
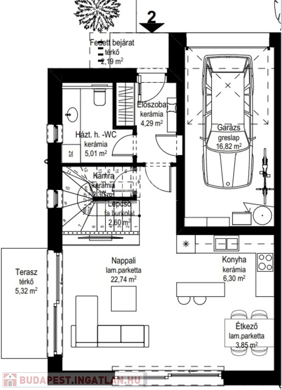
Hasznos alapterület: 122 m²


Telekméret: 231 m² saját kerttel


Szintek száma: földszint + emelet


Hálószobák: 3 külön nyíló szoba


Fürdőszobák: összesen 3 (2 az emeleten, 1 a földszinten)


Nappali: 33 m²-es amerikai konyhás tér, közvetlen teraszkapcsolattal


Parkolás: fedett garázs, nagyobb méretű autó számára is ideális



Műszaki felszereltség


POROTHERM 30 N+F téglafalak, monolit vasbeton födémszerkezet


15 cm homlokzati EPS hőszigetelés + 20 cm födémszigetelés


Hőszivattyúval működő mennyezeti fűtés és hűtés


3 rétegű hőszigetelt nyílászárók és biztonsági bejárati ajtó


Laminált parketta és kerámia burkolatok kombinációja


Terrán Zenit Max Carbon tetőcserép



Kiemelt extrák


Komplett okosotthon rendszer


Motoros alumínium redőnyök


Kamera- és riasztórendszer előkészítés


Videó kaputelefon


Elektromos kapu és autótöltési lehetőség


Automata kertöntöző


WPC kerítés, rejtett világítás, kültéri lámpatestek


Légtechnikai rendszer kiépítve



Digitális projektkövetés – PlanRadar

A vásárló:


Élőben követheti az építkezés előrehaladását telefonon


Kéthetente részletes fotódokumentációt kap


Az átadáskor digitálisan megkap minden szükséges hivatalos dokumentumot (garanciák, tervrajzok, jegyzőkönyvek)

Finanszírozási lehetőségek tárháza


Hitelből is megvásárolható


Díjmentes hitelügyintézés minden hazai bank felé


Elérhető aktuális állami támogatások



Várható átadás: 2026. III. negyedév
Ez az ingatlan ideális választás mindazok számára, akik modern, biztonságos és kényelmes otthont szeretnének. Ne hagyja ki ezt a kivételes lehetőséget!
ID: 390189

Családi ház részletei

Ár: 159 900 000 Ft
Méret: 122 négyzetméter
Azonosító: 11582566
Irodai azonosító: 390189
Cím: Szőlőtelep utca
Telek: 231 négyzetméter
Ingatlan állapota: Épülő
Jelleg: ikerház
Építőanyag: Tégla
Fűtés jellege: Geotermikus
Fűtés módja: Hőszivattyú
Komfort fokozat: Dupla komfort
Kor: Új építésű
Szintek száma: 1 szint
Egész szobák: 4

Egyéb jellemzők

  • Csatorna
  • Garázs
  • Pince
  • Terasz

Térkép


Így keressen budapesti ingatlant négy egyszerű lépésben. Csupán 2 perc, kötelezettségek nélkül!

Szűkítse a budapesti ingatlanok
listáját
Válassza ki a megfelelő
budapesti ingatlant
Írjon a hirdetőnek
Várjon a visszahívásra