Eladó családi ház Budapest X. ker 149 500 000 Ft

Leírás

Megvételre kínálunk, Budapest X. kerületében, Újhegy csendes kertvárosi részében, egy jó elosztású 3 szintes ikerházat.

Az ingatlan a 80-as évek elején, téglából épült, hasznos alapterülete 171 nm, mely tökéletes életteret biztosít, egy nagyobb család, vagy akár két generáció számára is.

Az ingatlanhoz 526nm, saját telekrész tartozik.

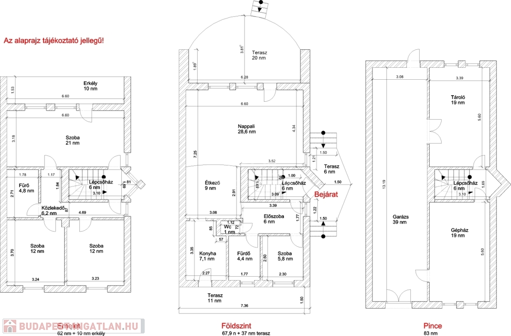
Az ingatlan beosztása:
Földszint -
-előszoba: 6nm,
-lépcsőház: 6nm,
-szoba: 5,8nm,
-fürdő: 4,4nm,
-wc: 1nm,
-konyha: 7,1nm,
-étkező: 9nm,
-nappali: 28,6nm
--------------------------
67,9 nm.
+ fedett terasz: 20 nm,
+ terasz 6 nm,
+ terasz 11 nm.

Emelet:
-lépcsőház: 6nm,
-közlekedő: 6,2nm,
-fürdő: 4,8nm,
-szoba: 12nm,
-szoba: 12nm,
-szoba: 21nm,
-----------------------
62 nm.
+erkély: 10nm,

Pince:
-garázs: 39nm,
-gépház: 19nm,
-tároló: 19nm,
-lépcsőház: 6nm,
---------------------
83 nm.

2015-ben egy nagyobb felújítás történt:
-festés,
-a fenti erkélyek beépítése,
-nyílászárók cseréje, (műanyag, redőnyös, szúnyoghálós)
-a ház külső szigetelést, színezést kapott,
-gázkazán, villanybojler cseréje,
-konyha felújítása.

A hátsó terasz, filagória, tároló, kerítés építése, 8 évvel ezelőtt.
A tárolóban, kézmosó+wc, fali csap került kialakításra.

Az ingatlanban, 3 db hűtő-fűtő klíma működik, melyeket 5 éven belül szereltek fel.

Riasztó rendszer van beépítve.

A fűtés gázkazánról működik, radiátoros hőleadással.

A beltéri ajtók, eredeti fából készültek.

Az ingatlan, saját mérőórákkal rendelkezik.

Az udvar parkosított, amiben 2db 35 éves diófa, és 1db 20 éves kajszi barack fa ad nyáron hűsítő árnyékot, és meghatározza a kert hangulatát.

Közelben iskolák, óvodák, bevásárlóközpont, minden egy helyen!
Kimondottan jó tömegközlekedés!

Amivel segítjük az Ön ingatlanvásárlását:
- ingyenes hitelügyintézés,
- jogi háttér,
- földhivatali ügyintézés,
- energetikai tanúsítvány,
- a vevő számára az ingatlanközvetítés ingyenes.

Irodánk 30 éves szakmai tapasztalattal áll ügyfelei rendelkezésére!

Várom szíves megkeresését!

Családi ház részletei

Ár: 149 500 000 Ft
Méret: 171 négyzetméter
Azonosító: 11601214
Irodai azonosító: 392852
Cím: Zsombék utca
Telek: 526 négyzetméter
Ingatlan állapota:
Jelleg: ikerház
Építőanyag: Tégla
Fűtés jellege: Héra
Fűtés módja: Gáz
Komfort fokozat: Dupla komfort
Kor: 21-50 éves
Szintek száma: 2 szint
Egész szobák: 5

Egyéb jellemzők

  • Csatorna
  • Garázs
  • Pince
  • Terasz

Térkép


Így keressen budapesti ingatlant négy egyszerű lépésben. Csupán 2 perc, kötelezettségek nélkül!

Szűkítse a budapesti ingatlanok
listáját
Válassza ki a megfelelő
budapesti ingatlant
Írjon a hirdetőnek
Várjon a visszahívásra