Eladó családi ház Budapest IV. ker 190 000 000 Ft

Leírás


Elhelyezkedése: Zöldövezet Tájolása: Nyugati tájolású Állapota: Jó Komfort besorolása: Dupla komfortos Építési éve: 1969 Alapterülete: 150 m2 Telekterülete: 425 m2 Szobák száma: 7szoba Fűtés típusa: Cirkó Homlokzat állapot: átlagos Építési mód: Tégla Parkolási lehetőség: Telken Kilátás: Utcafronti kilátás Jellemzői: Alacsony rezsi, Csendes környék, Jó közlekedés Energetikai besorolás: Nincs adat Egyéb jellemzők: Erkély, Pince
4. kerület, Semmelweis utcában eladó egy 425 m2 telken fekvő, 1969-ben téglából (38 cm) épült, 150 m2 két szintes családi ház, alatta 75 m2 pincével.

Az épületben külön lépcsőház és 2 önálló bejárattal rendelkező lakás található.

Földszinti 75 m2-es, 3 szobás, erkélyes (2 m2) világos lakás. 2018-ban történtek felújítások, amely során kicserélték a villanyhálózatot, vízvezetéket, külső nyílászárókat, hideg- meleg burkolatokat.

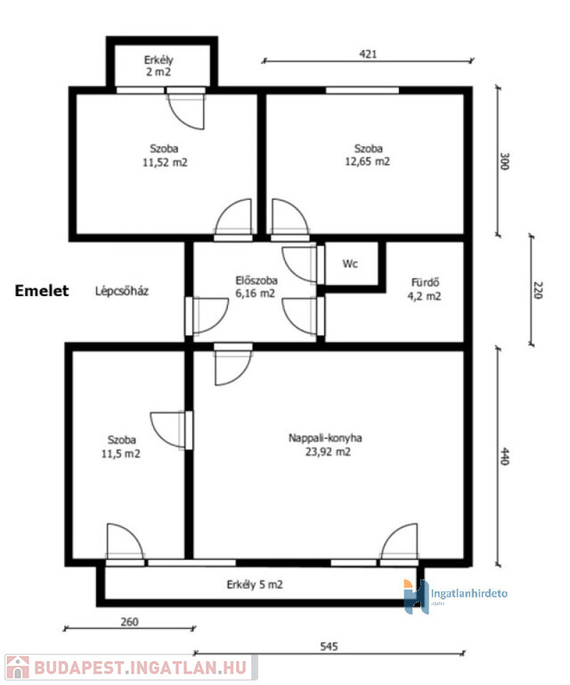
Emeleti 75 m2-es, 4 szobás, erkélyes (2 m2 és 5 m2) világos lakás. 2022-ben történtek felújítások, amely során kicserélték a villanyhálózatot, vízvezetéket, bejárati ajtót, külső- belső nyílászárókat, hideg- meleg burkolatokat, klímaberendezést, fűtés rendszert és cirkókazánt.

Közlekedés: buszok (30, 30A, 96, 122E, 147, 196, 230) éjszakai járat (930) pár percen belül elérhetőek.

Közelben: bevásárlási lehetőségek, iskola, óvoda, bank, posta, gyógyszertár stb

További információért kérem, hívjon bizalommal, majd nézze meg személyesen, és tegyen egy ajánlatot!

Családi ház részletei

Ár: 190 000 000 Ft
Méret: 150 négyzetméter
Azonosító: 11606969
Cím: Semmelweis
Telek: 425 négyzetméter
Ingatlan állapota:
Jelleg: családi ház
Építőanyag: Tégla
Fűtés jellege: Cirkó
Komfort fokozat: Dupla komfort
Kor: 1-5 éves
Elhelyezkedés: Utcafronti
Szintek száma: Földszintes
Egész szobák: 7

Egyéb jellemzők

  • Pince

Térkép


Így keressen budapesti ingatlant négy egyszerű lépésben. Csupán 2 perc, kötelezettségek nélkül!

Szűkítse a budapesti ingatlanok
listáját
Válassza ki a megfelelő
budapesti ingatlant
Írjon a hirdetőnek
Várjon a visszahívásra