Eladó családi ház Budapest III. ker 1 679 000 Euro

Leírás

Nyolcszobás, 567 m²-es luxus modern villa Budapestre panorámás kilátással, 1524 m²-es telken.

Lakótér: 526 m²
Telek mérete: 1524 m²
Fürdőszobák száma: 4
Recepciós/társalgóterek: 3
Garázs: 5 férőhely + további 3 beállóhely
Panorámás erkélyek: 40 m² + 30 m²

Főbb jellemzők:

- Gigabites optikai internethálózat
- Kondenzációs gázkazán melegvíz-tárolóval
- Hűtés/fűtés: 6 darab split klímaberendezés
- Teljes riasztórendszer mozgás-, törés- és nyitásérzékelőkkel, minden szobára, ablakra és ajtóra kiterjedően, 15 percen belüli kiszállás garanciával

- Okostelefonról vezérelhető kapurendszer az automatikus be- és kijutásért
- Különálló, 2 férőhelyes garázs (40 m²) + kapcsolódó 3 férőhelyes garázs (50 m²) beszerelt akkumulátor-karbantartó rendszerrel

Teljesen bútorozottan és felszerelten eladó.

Az eredetileg a hetvenes években ikerházként épült villa 2012-ben teljes felújításon esett át, korszerű elektronikai rendszerekkel és luxus színvonalú kényelmi felszereltséggel kiegészítve. A kissé lejtős telken elhelyezkedő épületből a kert közvetlenül elérhető a fő nappali/társalgó térből, valamint az alatta lévő wellness szintről is.
A magas betonkerítés biztosítja a telek határolását és maximális privát szférát nyújt a kertben és a városra néző tágas erkélyeken.

Főbb helyiségek és felszereltség

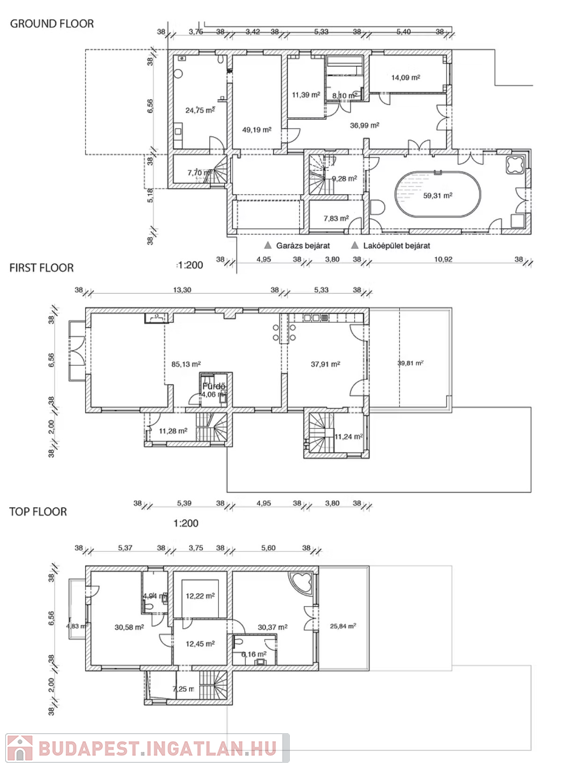
Földszint (254,27 m²):

- Tágas, 3 állásos garázs
- Wellness részleg: fűtött, UV-szűrős beltéri medence, páramentesítő rendszer, jacuzzi, finn szauna, infraszauna, szolárium
- Relaxációs tér, amely összeköti a spa-t és a tükrös falú, teljesen felszerelt házi edzőtermet
- Moziszoba: 250 cm átmérőjű vetítővászon, prémium projektor, beépített 6.1-es hangrendszer, külön klíma
- Padlótól plafonig érő üvegfelületek, közvetlen kertkapcsolattal

Első emelet (146,56 m² + 39,81 m² terasz):

- Panorámás terasz gázgrillel és kültéri televízióval
- Modern, nyitott, egyedi tervezésű konyha beépített gépekkel (2 hűtőszekrény) és reggelizőpult
- Különleges, kör alakú, 12 fős étkezőasztal
- Lélegzetelállító nappali tér, egyedi bőr ülőgarnitúrával, Noguchi dohányzóasztallal, Bang & Olufsen beépített hangrendszerrel
- Kialakított társalgó sarok Le Corbusier kanapékkal
- Nagy, modern kandalló az Eames Lounge fotel mellett

Felső szint (91,75 m² + 30,37 m² terasz + 4,83 m² terasz):

- Fő hálószoba: kétszemélyes masszázskáddal, városi panorámával
- Falra szerelt, 189 cm-es Samsung 4K Crystal UHD Smart LED TV Philippe Starck hangrendszerrel
- Tükörfalú, beépített gardrób, amely bárterülethez kapcsolódik
- Mindkét hálószoba szőnyegpadlós, saját fürdőszobával felszerelt
- Távirányítós sötétítő rolók

Hangulat és életérzés:
Ez a gondosan felújított hetvenes évekbeli villa retro-futurista báját ötvözi a modern luxussal. A kifinomult alaprajz a beltéri és kültéri életterek tökéletes harmóniáját teremti meg. A wellness szint, a beltéri fűtött medence, valamint a gyönyörű kert különleges resort-hangulatot biztosít.

A városi nyüzsgéstől csak percekre fekvő, mégis nyugodt környezetben található otthon ideális pihenőhely és különleges alkalmak színtere egyaránt. Naplementekor ez a modern oázis tökéletes helyszín egy koktélpartira, grill vacsorára, tűzrakásra vagy akár medencés bulira.
A gondosan megtervezett hangulatvilágítás és a designer bútorok kifinomultságot sugároznak, míg a Bang & Olufsen rendszerek garantálják az emlékezetes élményt.

Amennyiben az ingatlan felkeltette az érdeklődését, keressen bizalommal.

Családi ház részletei

Ár: 1 679 000 Euro
Méret: 526 négyzetméter
Azonosító: 11512106
Telek: 1524 négyzetméter
Ingatlan állapota: Kitűnő
Jelleg: családi ház
Építőanyag: Tégla
Fűtés jellege: Házközponti
Fűtés módja: Gáz
Komfort fokozat: Luxus komfort
Kor: 11-20 éves
Elhelyezkedés: Panorámás
Szintek száma: 3 szint
Bútorozott: Bútorozott
Egész szobák: 8

Egyéb jellemzők

  • Beépíthető tetőtér
  • Csatorna
  • Garázs
  • Kábel TV
  • Melléképület
  • Padlás
  • Parketta
  • Pince
  • Terasz
  • Medence

Így keressen budapesti ingatlant négy egyszerű lépésben. Csupán 2 perc, kötelezettségek nélkül!

Szűkítse a budapesti ingatlanok
listáját
Válassza ki a megfelelő
budapesti ingatlant
Írjon a hirdetőnek
Várjon a visszahívásra