Eladó családi ház Budapest III. ker 249 900 000 Ft

Leírás

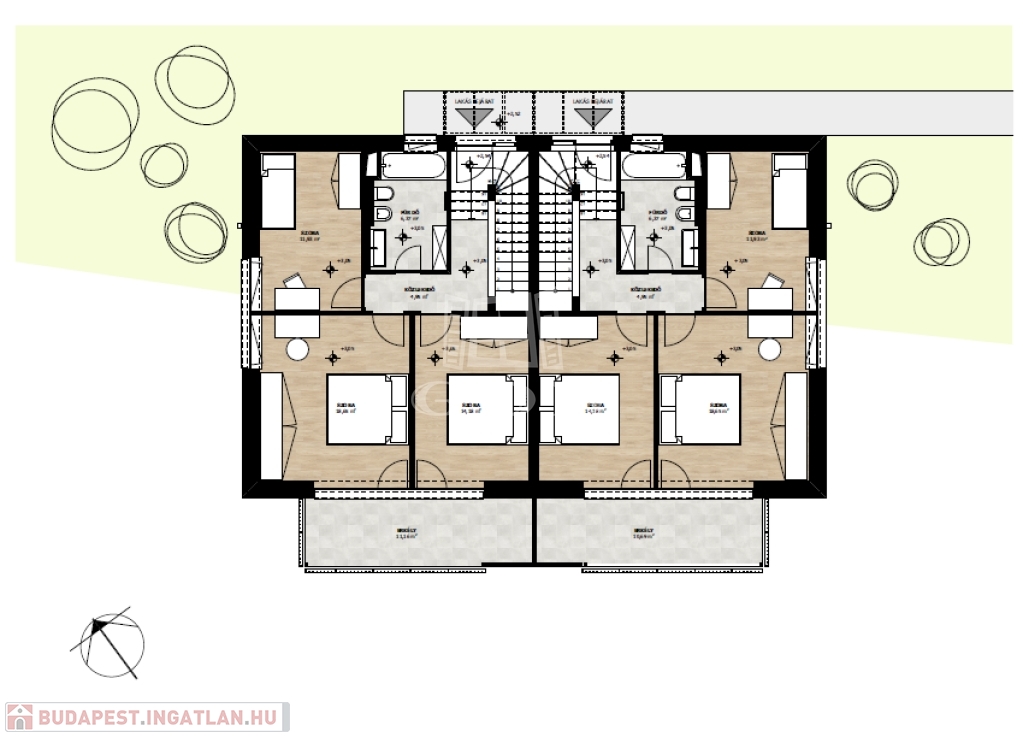
A Bécsi Lejtő Lakópark a III. kerületben, az Ürömhegy oldalában terül el. Déli fekvésével pompás kilátást nyújt a Hármashatár Hegyre.


A nyolc lakás négy épületben helyezkedik el, egy épületben két darab háromszintes lakás kap helyet.

A lakások mindkét lakószintjén tágas teraszról élvezhető a panoráma. A lakásokhoz saját kertrész és két-két személygépkocsi elhelyezésére alkalmas mélygarázs tartozik.Sok tárolóhellyel.

A kivitelezést tapasztalt szakembergárda végzi kizárólag magas minőségű alapanyagok beépítésével.

Modern lakásaink energiatakarékosan üzemeltethetők és megfelelnek a legkorszerűbb igényeknek.

A fölszint és emelet helyiségeinek fűtése padlófűtéssel és mennyezetfűtéssel, hűtése mennyezet hűtéssel történik.
A nyílászárók műanyag profilszerkezetű, 3 rtg. hőszigetelő üvegezésű bukó-nyíló és toló rendszerű nyílászárók.

A hideg és meleg burkolatok szaniterek, csaptelepek, beltéri ajtók megrendelő által választhatók megadott értékhatáron belül!

A kertekben automata öntözőrendszer kerül kiépítésre.

Fűtött nyomvonal a gépkocsi feljárón!

A lakások készültsége jelenleg kb. 80% -os, amennyiben most foglalja le ingatlanát akkor a hideg-meleg burkolatok egyéb belső munkálatok elvégzése után a nyáron már élvezheti lakása kényelmét!

Amennyiben hirdetésem felkeltette érdeklődését keressen bizalommal.

Egyedi Stílus és Lakberendezés
Álmodj Velem Otthont!
www.egyedistilus.hu

Családi ház részletei

Ár: 249 900 000 Ft
Méret: 201 négyzetméter
Azonosító: 11376580
Irodai azonosító: 367190
Cím: Bécsi út
Telek: 368 négyzetméter
Ingatlan állapota: Átlagos
Jelleg: ikerház
Építőanyag: Tégla
Fűtés jellege: Geotermikus
Fűtés módja: Hőszivattyú
Kor: Új építésű
Szintek száma: 2 szint
Egész szobák: 4

Egyéb jellemzők

  • Garázs
  • Pince
  • Terasz

Térkép


Így keressen budapesti ingatlant négy egyszerű lépésben. Csupán 2 perc, kötelezettségek nélkül!

Szűkítse a budapesti ingatlanok
listáját
Válassza ki a megfelelő
budapesti ingatlant
Írjon a hirdetőnek
Várjon a visszahívásra