Eladó családi ház Budapest II. ker 165 000 000 Ft

Leírás

Budapest II/A kerület PESTHIDEGKÚT Széphalom városrészében, zöldövezeti környezetben eladó egy, D_DNY-i fekvésű, 98 m²-es ikerház, amely ideális választás azoknak, akik nyugodt, természetközeli életre vágynak, viszont nem szeretnének távol maradni a város által nyújtott kényelmi szolgáltatásoktól sem.

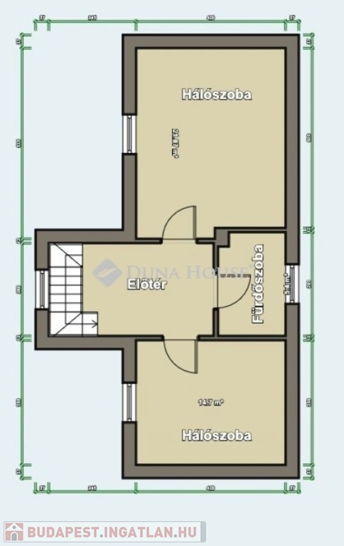
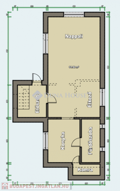
Az otthonban két hálószoba, tágas nappali, étkező, konyha és két fürdőszoba található, valamint egy hangulatos terasz, amely tavasztól télig alkalmat nyújt a meghitt családi és baráti együttlétekre.

A 501 m²-es telek árnyékos kertje tökéletes családi programokhoz, nyáron pedig medence is felállítható.

A fedett autóbeálló és a szerszámoskamra praktikus kényelmet nyújt, míg a 25 m²-es pince extra tárolóhelyet biztosít.

Külső felújítás és hőszigetelés 2020-ban történt, a belső részek nagy felújítása pedig 2009-ben.

A kert osztatlan közös tulajdon, de ügyvéd által ellenjegyzett használati megállapodás garantálja a zavartalan használatot. A kert teljesen elszeparált, kerítéssel elválasztva, és a háznak nincs utcafrontja, így többszörösen is biztosított a privát tér.

A környék különlegessége a közeli nagy játszótér, valamint több iskola és óvoda, sportpálya, orvosi rendelő, uszoda és a Széphalom Üzletház minden adott a kényelmes családi élethez néhány 100 méteres körzetben, séta távolságra.

Ha szeretne csendes, zöld környezetben élni, mégis közel maradni a városhoz, ez az otthon Önre vár, várom megtisztelő hívását.

165000000 Ft

Referencia szám: HZ044559

Családi ház részletei

Ár: 165 000 000 Ft
Méret: 93 négyzetméter
Azonosító: 11611459
Irodai azonosító: HZ044559-5184271
Cím: Eladó 93 nm-es ház Budapest 2. ker.
Telek: 501 négyzetméter
Ingatlan állapota:
Jelleg: ikerház
Építőanyag: Tégla
Fűtés jellege: Cirkó
Fűtés módja: Gáz
Komfort fokozat: Dupla komfort
Kor: 21-50 éves
Szintek száma: Földszintes
Egész szobák: 3

Egyéb jellemzők

  • Garázs

Térkép


Így keressen budapesti ingatlant négy egyszerű lépésben. Csupán 2 perc, kötelezettségek nélkül!

Szűkítse a budapesti ingatlanok
listáját
Válassza ki a megfelelő
budapesti ingatlant
Írjon a hirdetőnek
Várjon a visszahívásra