Eladó családi ház Budaörs 380 000 000 Ft

Leírás

ELEGÁNS OTTHON BUDAÖRS SZÍVÉBEN!

Eladó Budaörs központjában, de mégis csendes helyen egy impozáns méretekkel és terekkel rendelkező belső háromszintes családi ház.
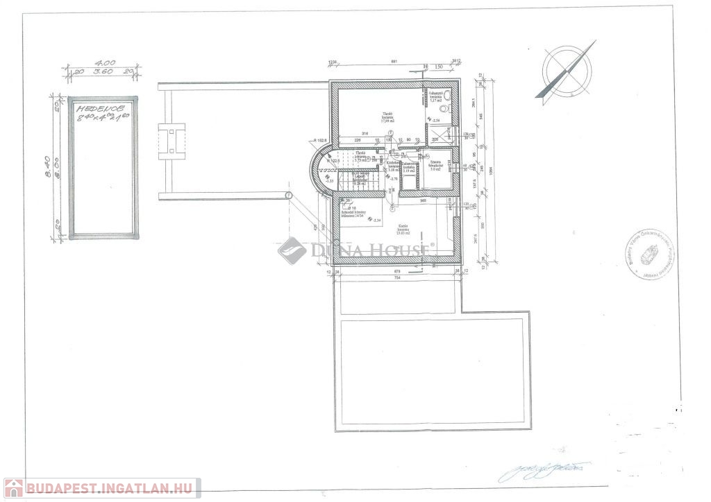
Az ingatlan közel 400 nm-es (alagsor nettó 57,36 nm, földszint nettó 216,93 nm, tetőtér nettó 124,37 nm) és rendkívül élhető az elrendezése.
Az alagsorban kiszolgáló helyiségek találhatók: tároló, kazánház, szauna vizesblokkal és egyéb gépészeti elemek, mint például vízlágyító és központi porszívó, a földszintet a közel 60 nm-es galériás nappali uralja a hozzákapcsolódó konyhával és étkezővel, ill. két hálószoba (jelenleg összenyitva) is található ezen a szinten fürdőszobával, közlekedő/gardróbbal, mosókonyhával és a duplagarázzsal.
A tetőtérben pedig további négy hálószoba van három fürdőszobával.
A fűtésről és hűtésről parapetes fan -coil rendszer gondoskodik, melynek egy gázkazán a központi hőtermelője.
A nappaliban egy attraktív cserépkályha szolgál alternatív fűtési lehetőségként.
A ház 2005-ben épült, tulajdonosai folyamatosan újították, korszerűsítették: 2022-ben például friss belső festést kapott az ingatlan, a tetőt is renoválták, ill. napelem rendszer telepítésére is sor került.
A 993 nm-es kert gyönyörű és a budaörsi viszonyok ellenére meglepően intim. Külön dísze a grillező hely és a komoly gépészettel rendelkező kültéri medence (8 mX3,6 m).
A nappali, konyha és étkező terét és a kertet egy kb. 100 nm-es terasz köti össze.
Parkolni a tágas duplagarázsban lehet, ill. egy fedett autóbeállón és a ház előtt is kényelmesen elfér több autó.
Az infrastruktúra és közlekedés tökéletes, pár perc alatt könnyen elérhető a főváros autóval és tömegközlekedéssel is. Több bevásárlási (TESCO, AUCHAN, LIDL, ALDI) és szórakozási lehetőség (VÁROSI SPORTCSARNOK ÉS USZODA, SZÍNHÁZ, JÁTSZÓHÁZ) is néhány utcára található.
Amennyiben az ingatlan felkeltette érdeklődését, kérem keressen bizalommal!

Családi ház részletei

Ár: 380 000 000 Ft
Méret: 341 négyzetméter
Azonosító: 11594311
Irodai azonosító: HZ099756-5130016
Cím: Budaörsi 341 nm-es ház eladó
Telek: 993 négyzetméter
Ingatlan állapota:
Jelleg: családi ház
Építőanyag: Tégla
Fűtés jellege: Egyedi
Fűtés módja: Gáz
Kor: 21-50 éves
Szintek száma: Földszintes
Egész szobák: 6
Fél szobák: 1

Térkép


Így keressen budapesti ingatlant négy egyszerű lépésben. Csupán 2 perc, kötelezettségek nélkül!

Szűkítse a budapesti ingatlanok
listáját
Válassza ki a megfelelő
budapesti ingatlant
Írjon a hirdetőnek
Várjon a visszahívásra