Eladó családi ház Budaörs 346 000 000 Ft

Leírás

PANORÁMÁS CSALÁDI HÁZ, FENNTARTHATÓSÁG LUXUS KIVITELBEN!

Csendes, domboldali környezetben, mégis kiválóan megközelíthető helyen kínáljuk ezt a prémium kategóriás, nettó 219 m²-es, nappali + 3 szobás, dupla férőhelyes garázzsal, új építésű panorámás önálló családi házat Budaörsön, a Kőhegy és Odvashegy között.
Tágas, világos terek, kiváló anyagok, modern technológia, nagy terasz és páratlan panoráma garantálja, hogy otthon lenni öröm legyen.


Főbb jellemzők - /Műszaki részlet/:

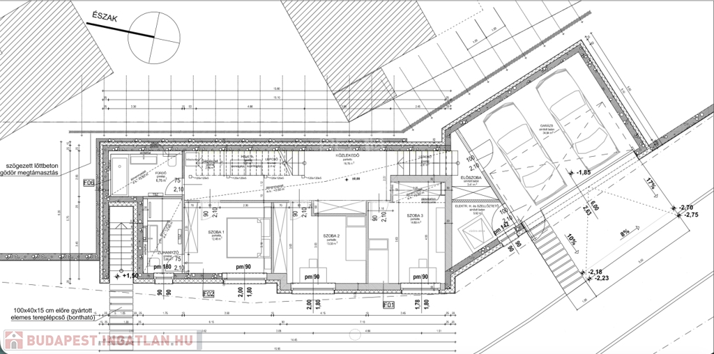
- Két szintes kialakítás: alsó szinten dupla garázs (2 autó részére), két tágas gyerekszoba, fürdőszoba, valamint szülői hálószoba saját fürdővel
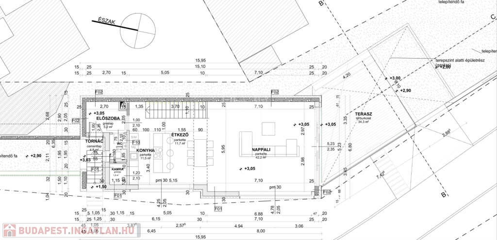
- Emeleti szint: impozáns, egy légterű nappali + étkező + konyha + kamra blokk, külön WC és előszoba
- A nappaliból közvetlen átjárás a 34,3 m²-es teraszra, ahonnan lenyűgöző panoráma nyílik a környező hegyekre
- Okos otthon rendszer (Loxone) – fűtés, légkondicionálás/hűtés, világítás, motoros zsaluzia mind egy érintéssel vezérelhető
- Korszerű gépészet: levegő–víz hőszivattyús rendszer (9 kW), padlófűtés minden helyiségben, mennyezethűtés (szobák+ nappali-konyha-étkező), központi szellőztető rendszer, központi porszívó


Szerkezet, anyagok, megoldások:

- Alapozás: 30 cm monolit vasbeton lemez + sávalap
- Falazatok: Porotherm 30 N+F kerámia rendszer + méretezett vasbeton falak
- Födémek: 25 cm monolit vasbeton lemez
- Tető: 42°-os nyeregtető, Terrán Zenit gránit cserépfedéssel
- Homlokzati hőszigetelés: 15-20 cm grafitos EPS-80, vakolt kivitel
- Nyílászárók: háromrétegű üvegezésű alumínium szerkezetek, motoros zsaluzia
- Belső nyílászárók: CPL felületű, fehér színű ajtólapok
- Okos-otthon rendszer: Loxone épületautomatika

Madárcsicsergős nyugodt környék, mégis jellemző a kiváló infrastruktúra, a zöldövezeti hangulat.
Tömegközlekedéssel is és gépjárművel is könnyedén megközelíthető a város.
Az utcától séta távolságra megtalálható, természetvédelmi terület, kirándulóhelyek, de pár perc alatt elérhető a bevásárlóközpont, sportpálya, iskolák, óvodák is.

A beruházó és a kivitelező egyaránt nagy múltú, megbízható vállalkozások – referenciáik leellenőrizhetők, ami garanciát jelent a magas minőségre.

Nagyon IGÉNYES KIVITELEZÉS, magas műszaki tartalommal, minőségi anyagok felhasználásával épül ( részletes Műszaki leírással és további anyagokkal rendelkezem.)

MÉRETEK, TÁJOLÁS, ELRENDEZÉS, AZ ALAPRAJZOKON.
( Belső átalakítás-kialakítás a Vevő igényei alapján megoldható )

TERVEZETT ÁTADÁS: 2026. III. negyedév!

Kedvezményes hitelek felvehetők!
(Szükség esetén ingyenes hitelügyintézéssel)

A VÉTELÁR KULCSRAKÉSZ ÁLLAPOTOT TARTALMAZZA.

Az ingatlan megtekintése előre egyeztetett időpontban lehetséges, akár hétvégén is.
Amennyiben felkeltette az érdeklődését, további kérdéseivel kapcsolatban várom jelentkezését!

Családi ház részletei

Ár: 346 000 000 Ft
Méret: 219 négyzetméter
Azonosító: 11588805
Irodai azonosító: 391100
Cím: Panorámás,Prémium Kategóriás ÚJ Ház
Telek: 348 négyzetméter
Ingatlan állapota: Kitűnő
Jelleg: családi ház
Építőanyag: Tégla
Fűtés jellege: Geotermikus
Fűtés módja: Hőszivattyú
Komfort fokozat: Luxus komfort
Kor: Új építésű
Szintek száma: 1 szint
Egész szobák: 4

Egyéb jellemzők

  • Csatorna
  • Garázs
  • Pince
  • Terasz

Térkép


Így keressen budapesti ingatlant négy egyszerű lépésben. Csupán 2 perc, kötelezettségek nélkül!

Szűkítse a budapesti ingatlanok
listáját
Válassza ki a megfelelő
budapesti ingatlant
Írjon a hirdetőnek
Várjon a visszahívásra