Eladó családi ház Börcs 69 500 000 Ft

Leírás

Börcs csendes utcájában ajánlom figyelmébe, ezt a rendkívül hangulatos családi házat, mely 2012-ben épült egy 1158 m2-es telken. Szépen karbatartott, gondozott ingatlan.
A ház téglafalazatú, hőszigeteléssel ellátott, a fafödémes tetőszerkezet bitumenzsindellyel borított.
A fűtést és a melegvizet gázkazán szolgáltatja, a hőleadást padlófűtés és radiátorok kombinációja biztosítja.
A nyílászárók műanyag ablakok, redőnnyel, szúnyoghálóval felszereltek.
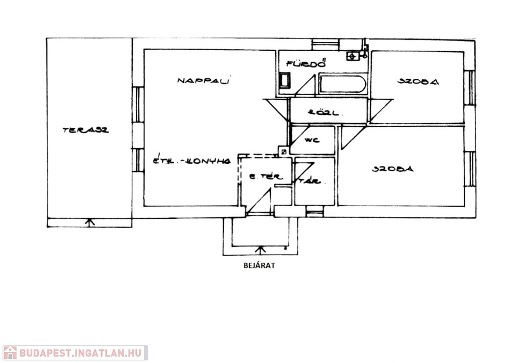
A ház alapterülete: 73,78m2, elosztása szerint: nappali-konyha-étkező, kamra, 2 hálószoba, kádas fürdőszoba, wc, előtér, folyosó kialakítású. A nappaliból kilépve egy 18,6m2 alapterületű terasz található, melyről az egész udvar jól belátható.
A folyosón található egy padlásfeljáró, ahol a padlástér részben tárolásra alkalamas.
Az alaprajzot a képek között feltöltve találja.
A telek úgynevezett "nyeles telek", az utcafrontról egy keskeny saját úton közelíthető meg az ingatlan. Teljesen körbekerített, az autóbehajtáshoz széles kapuval ellátott.
A telek mérete megengedi, hogy garázs, kerti kisház, műhely építhető. (kerti faház jelenleg is található az udvar hátső részében)

Szép az utca, kedvesek a szomszédok, nyugodt a környezet. Közelban a buszmegálló, a kisbolt, a településen óvoda, iskola, orvosi rendelő, ABC rendelkezésre áll.

Amennyiben a hirdetés felkeltette érdeklődését és személyesen szeretné megtekinteni az ingatlant, úgy kérem
keressen elérhetőségeim bármelyikén, időpontegyeztetést követően rugalmasan tudom mutatni a házat.
Kérésre további külső és belső képeket szívesen küldök!

Unger-Takács Anikó
+36 (70) 235 7733
[email protected]
(További képekért és információkért kérem hívjon!)

Családi ház részletei

Ár: 69 500 000 Ft
Méret: 74 négyzetméter
Azonosító: 11593170
Irodai azonosító: 043982
Erkély mérete: 19.00 négyzetméter
Telek: 1158 négyzetméter
Ingatlan állapota: Átlagos
Jelleg: családi ház
Építőanyag: Tégla
Fűtés jellege: Cirkó
Egész szobák: 3
Nappalik: 1

Egyéb jellemzők

  • Beépíthető tetőtér
  • Csatorna
  • Garázs
  • Melléképület
  • Pince
  • Terasz

Így keressen budapesti ingatlant négy egyszerű lépésben. Csupán 2 perc, kötelezettségek nélkül!

Szűkítse a budapesti ingatlanok
listáját
Válassza ki a megfelelő
budapesti ingatlant
Írjon a hirdetőnek
Várjon a visszahívásra