Eladó családi ház Bodrogkeresztúr 69 900 000 Ft

Leírás

For English and German, please scroll down!


ELADÓ CSALÁDI HÁZ BODROGKERESZTÚRBAN, FESTŐI KÖRNYEZETBEN!

Telekméret: 1488 m2
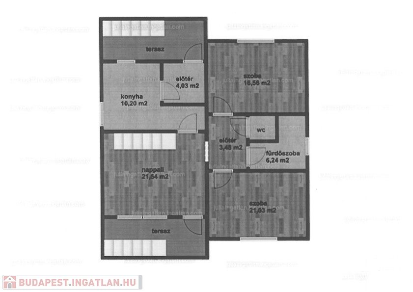
Alapterület: 135 m2, két szint
Panoráma a Zempléni hegyek felé és a Tokaji hegyre
Az ingatlan 1986-ban, keresztúri blokk falazattal épült
A HÁZ ÉS A TETŐ SZIGETELT
BRAMAC CSERÉP héjazat
Friss, modern felújítás
4 szoba + tágas, nagy, klimatizált nappali
2 terasz, 2 erkély, 2 garázs, melléképület
Burkolatok: padlószőnyeg, laminált parketta, hajópadló
Festett falak
ÚJ VILLANY-, ÉS VÍZVEZETÉKHÁLÓZAT
Gázkazán + vegyes tüzelésű kazán, a hőleadók új lapradiátorok
Felújított fürdőszoba zuhanykabinnal + hidromasszázs káddal
Modern konyha
Hőszigetelt fa ablakok az alsó szinten, dupla fa ablakok a felső szinten
Szuterén részben kazánház, tárolók, kisebb méretű pince
Nagyméretű, szépen gondozott kert
Biztonságos, csendes környezet


Jöjjön el, szeressen bele ebbe a csodálatos örök panorámával rendelkező ingatlanba!


Ügyfeleinket teljes körű hitelügyintézéssel segítjük bankfüggetlen pénzügyi tanácsadónk közreműködésével. Konzultációink díjmentes!

Igény esetén korrekt és gyors ügyvédi háttérrel biztosítjuk az adásvételt.





FAMILY HOUSE FOR SALE IN BODROGKERESTÚR, IN A PICTURESQUE SURROUNDING AREA!

Plot size: 1488 m2
Floor area: 135 m2, two floors
Panorama towards the Zemplén Mountains and the Tokaj Mountains
The property was built in 1986 with kereszúr block masonry
THE HOUSE AND THE ROOF ARE INSULATED
BRAMAC CSEREP shell
Fresh, modern renovation
4 rooms + spacious, large, air-conditioned living room
2 terraces, 2 balconies, 2 garages, outbuilding
Flooring: carpet, laminated parquet, shiplap
Painted walls
NEW ELECTRICAL AND WATER SYSTEM
Gas boiler + mixed-fuel boiler, the heat emitters are new panel radiators
Renovated bathroom with shower cabin + hydromassage bathtub
Modern kitchen
Insulated wooden windows on the lower floor, double wooden windows on the upper floor
Boiler room in the basement part, storage rooms, smaller cellar
Large, well-kept garden
Safe, quiet environment

Come and fall in love with this wonderful property with an eternal panorama!

We help our clients with full-scale loan management with the help of our bank-independent financial advisor. Our consultations are free of charge!
If required, we ensure the sale and purchase with a fair and fast legal background.




EINFAMILIENHAUS ZU VERKAUFEN IN BODROG KERESTSZTÚR, IN EINER MALERISCHEN UMGEBUNG!

Grundstücksgröße: 1488 m2
Wohnfläche: 135 m2, zwei Etagen
Panorama Richtung Zemplén-Gebirge und Tokajer Gebirge
Das Anwesen wurde 1986 aus Ziegelmauerwerk erbaut.
DAS HAUS UND DAS DACH SIND ISOLIERT
BRAMAC POT Schale
Frische, moderne Renovierung
4 Schlafzimmer + geräumiges, großes, klimatisiertes Wohnzimmer
2 Terrassen, 2 Balkone, 2 Garagen, Nebengebäude
Bodenbeläge: Teppich, Laminat, Nut- und Federbretter
Gestrichene Wände
NEUES STROM- UND WASSERNETZ
Gaskessel + Mischbrennstoffkessel, die Wärmeabstrahler sind neue Plattenheizkörper
Renoviertes Badezimmer mit Duschkabine + Hydromassage-Badewanne
Moderne Küche
Isolierte Holzfenster im Untergeschoss, doppelte Holzfenster im Obergeschoss
Im Untergeschoss befinden sich ein Heizungsraum, Lagerräume und ein kleinerer Keller.
Großer, gepflegter Garten
Sichere, ruhige Umgebung


Kommen Sie und verlieben Sie sich in dieses Anwesen mit einem wundervollen, ewigen Panorama!


Wir unterstützen unsere Klienten bei der umfassenden Kreditverwaltung mithilfe unserer bankenunabhängigen Finanzberater. Unsere Beratung ist kostenlos!

Bei Bedarf sichern wir den Kauf bzw. Verkauf mit einem fairen und schnellen rechtlichen Rahmen ab.

Családi ház részletei

Ár: 69 900 000 Ft
Méret: 135 négyzetméter
Azonosító: 11484883
Telek: 1488 négyzetméter
Ingatlan állapota: Felújított
Jelleg: családi ház
Építőanyag: Szilikát
Fűtés jellege: Cirkó
Fűtés módja: Gáz
Komfort fokozat: Összkomfort
Kor: 21-50 éves
Elhelyezkedés: Panorámás
Szintek száma: 2 szint
Egész szobák: 4
Nappalik: 1

Egyéb jellemzők

  • Csatorna
  • Garázs
  • Melléképület
  • Parketta
  • Terasz

Így keressen budapesti ingatlant négy egyszerű lépésben. Csupán 2 perc, kötelezettségek nélkül!

Szűkítse a budapesti ingatlanok
listáját
Válassza ki a megfelelő
budapesti ingatlant
Írjon a hirdetőnek
Várjon a visszahívásra