Eladó családi ház Bicske 94 900 000 Ft

Leírás

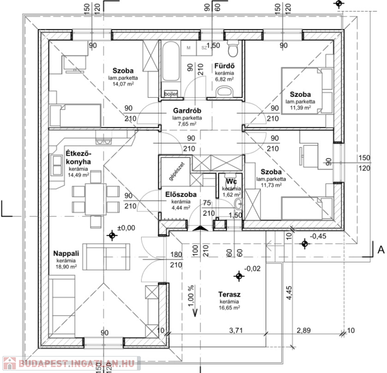
Eladó Bicske kertvárosi részén egy földszintes, nettó 102 nm-es önálló családi ház a hozzá tartozó kb. 500 nm-es telekkel.
Nappali + 3 hálószoba (14, 11, 12 nm), fürdőszoba WC-vel + külön WC.

Műszaki paraméterek:
30-as Ytong falazat rajta 10 cm dryvit szigeteléssel
Beton tetőcserép
3 rétegű műanyag fehér nyílászárók
Minden helyiségben padlófűtés hőszivattyús rendszerrel
H-tarifás villanyóra
Elektromos redőny illetve klíma előkészítés

A telek osztott tulajdonú, társasházi alapító okirattal kerül átadásra. Különálló épület, megközelítése nyélen keresztül történik. A teleken 2 ugyan olyan méretű és elrendezésű ház épül + egy felújított utcafronti ház. A házak között 10 méter van, így nem zavarják egymást a szomszédok.
Burkolatok szabadon választhatók. Átadás 2026 nyara.
A ház megfelel az új CSOK Plusz feltételeinek, illetve igénybe vehető rá az Otthon Start hitel is, így különösen jó lehetőség azoknak, akik saját elképzeléseik alapján szeretnék kialakítani otthonukat.

Az ingatlan kedvező elhelyezkedése és infrastruktúrája, rendkívül vonzóvá teszi. Több útvonalon is megközelíthető Budapest.

Bankfüggetlen hitel tanácsadónk díjmentesen áll az Ön rendelkezésére! Keressen bizalommal!

A hirdetésben szereplő adatok, információk, képek, alaprajzok stb... tájékoztató jellegűek! Irodánk az esetleges elírásokért felelősséget nem tud vállalni!

Tájékoztatjuk a Tisztelt Érdeklődőket, hogy az ingatlan hirdetésében szereplő telefonszám felhívásával Önök hozzájárulnak személyes adataik (név, telefonszám), a hirdetést feladó Kft. - által a bizalmas kezeléshez és nyilvántartáshoz.

További információért hívjon bizalommal a hét minden napján! Köszönöm, hogy időt szánt hirdetésemre, sikeres ingatlanvásárlást kívánok!

Családi ház részletei

Ár: 94 900 000 Ft
Méret: 102 négyzetméter
Azonosító: 11569743
Cím: Bicske kertváros
Telek: 500 négyzetméter
Ingatlan állapota: Kitűnő
Jelleg: családi ház
Építőanyag: Kérdezzen rá a hirdetőtől »
Szintek száma: 1 szint
Egész szobák: 4

Egyéb jellemzők

  • Csatorna
  • Garázs
  • Kábel TV
  • Melléképület
  • Parketta
  • Pince
  • Terasz

Így keressen budapesti ingatlant négy egyszerű lépésben. Csupán 2 perc, kötelezettségek nélkül!

Szűkítse a budapesti ingatlanok
listáját
Válassza ki a megfelelő
budapesti ingatlant
Írjon a hirdetőnek
Várjon a visszahívásra