Eladó családi ház Bicsérd 77 000 000 Ft

Leírás

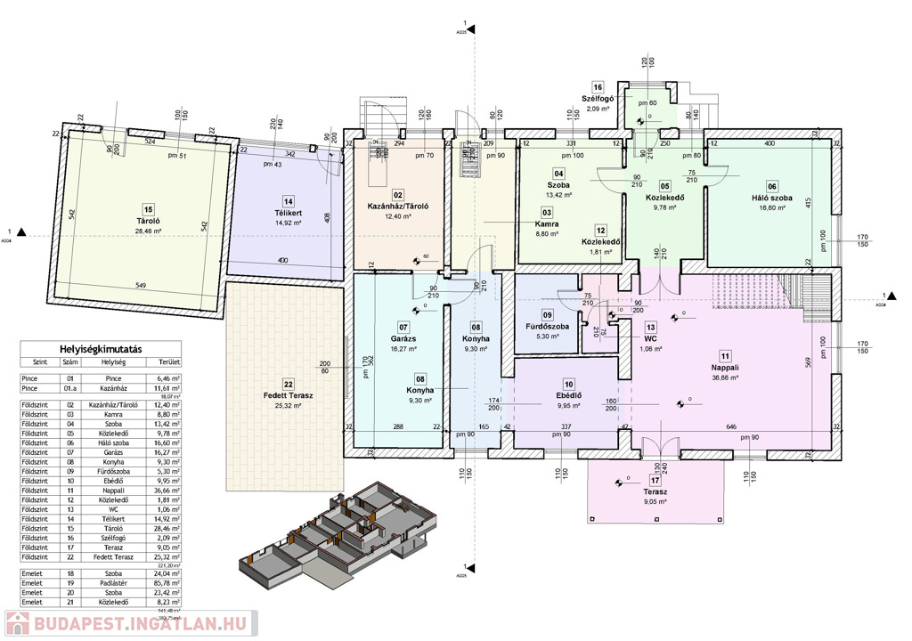
Pécs agglomerációjában, Bicsérden tetőtér beépítéses nagy alapterületű, tehermentes, összkomfortos családi ház, melléképületekkel tágas udvarral, telekkel - kert, gyümölcsös – nyugodt környezetben, rengeteg pályázati lehetőséggel tulajdonostól eladó.
A ház 1990-ben poroton téglából épült, tetőfedése Bramac cserép, fa, duplaüveges Velux nyílászárókkal, padlófűtéssel (gáz), kandallóval, napelemes rendszerrel rendelkezik. Állapota korának megfelelő.
A lakóházzal egybeépített garázsban egy jármű fér el, külön egy kisebb garázs, műhely tároló helyiség található.
A kikapcsolódást épített terasz, kemence, grillsütő, dézsa biztosítja. Telek 2 270 m3. Kertészkedésre alkalmas.
Ajánlott több gyermekes családok részére.
A község a város közelsége miatt népszerű gyermekes családok körében. Bolt, óvoda, iskola, játszótér, horgásztó megtalálható. Megközelíthetősége kiváló, közlekedés busszal, gépjárművel megoldható. Szennyvíz csatorna kiépítése jelenleg befejezés előtt áll.
Érdeklődni a tulajdonostól lehet.

+36302275599

Családi ház részletei

Ár: 77 000 000 Ft
Méret: 185 négyzetméter
Azonosító: 11341189
Telek: 2270 négyzetméter
Ingatlan állapota:
Jelleg: családi ház
Építőanyag: Tégla
Fűtés jellege: Egyéb
Fűtés módja: Gáz
Komfort fokozat: Összkomfort
Kor: 21-50 éves
Elhelyezkedés: Udvari
Szintek száma: Földszint + tetőtér
Egész szobák: 4
Nappalik: 1

Egyéb jellemzők

  • Beépíthető tetőtér
  • Csatorna
  • Garázs
  • Melléképület
  • Padlás
  • Parketta
  • Pince
  • Terasz
  • Medence

Térkép


Így keressen budapesti ingatlant négy egyszerű lépésben. Csupán 2 perc, kötelezettségek nélkül!

Szűkítse a budapesti ingatlanok
listáját
Válassza ki a megfelelő
budapesti ingatlant
Írjon a hirdetőnek
Várjon a visszahívásra