Eladó családi ház Biatorbágy 149 900 000 Ft

Leírás

Biatorbágyon, FREKVENTÁLT helyen kínálunk eladásra egy sokféleképpen hasznosítható, felújítandó, autentikus parasztházat, melyhez kivételesen nagy terület tartozik. Az épület régi, hiszen 1917-ben épült, viszont megőrizte a régi idők báját, amit igazán csak a helyszínen érez át az ember, mikor látja.

Az ingatlan kimondottan alkalmas bármilyen tevékenységre, melyhez szükséges a központi elhelyezkedés, a kitűnő megközelíthetőség és az utcafronti üzlethelyiség.
A HATALMAS telken, mely 2881nm, lehetőség van további telephely kialakítására is.

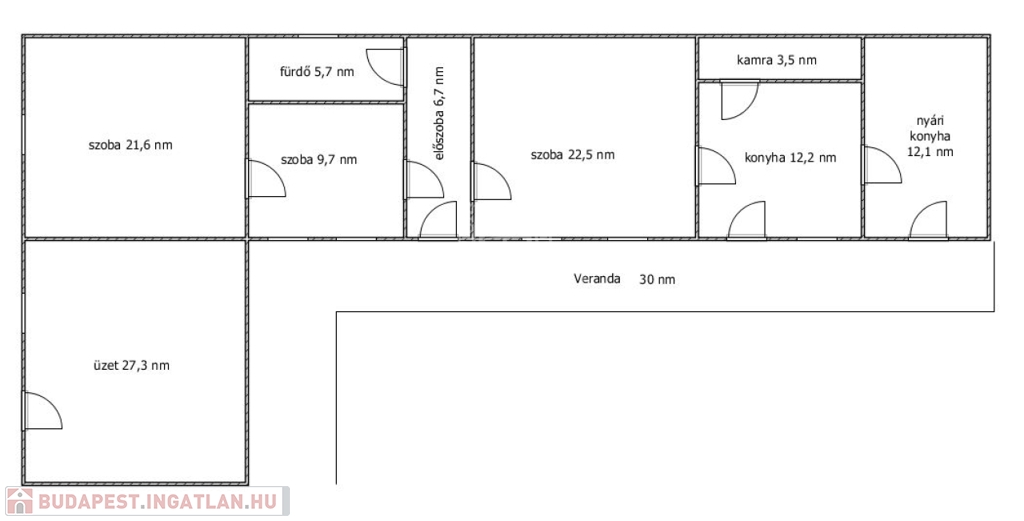
Autentikus tornácos ház – 136 m²

Két utcafronti szoba, amelyek közül az egyik ÜZLETHELYISÉGKÉNT is használható!
További két szoba, előszoba, konyha, fürdőszoba és egy nyári konyha biztosítja a kényelmet.
A helyiségek között kényelmes átjárás biztosított.
Az épülethez gazdasági melléképületek is kapcsolódnak.

Az épület vegyes falazatú, fafödémes, palatetős, nyílászárói fából készültek, a fűtést gáz cirkó biztosítja, alternatív megoldásként kályha is használható.

A telken különálló kocsibeálló áll rendelkezésre legalább két személyautónak, emellett találunk egy jó állapotú pincét is.

✅ Kiváló elhelyezkedés – frekventált környék, könnyű megközelíthetőség

A telek előtt parkolási lehetőség biztosított.
Buszmegálló a közelben.
Autóval is könnyen megközelíthető.

Utcafronti üzlethelyiség kialakítására alkalmas – ha vállalkozásban gondolkodsz, ez a helyszín garantáltan észrevehető!

Belső képek igény esetén e-mailben kérhetők.

Feltétlenül telefonáljon, ha VÁLLALKOZÁSÁHOZ olyan telephelyre van szüksége, mely könnyen észrevehető, jól megközelíthető és bővíthető!

Családi ház részletei

Ár: 149 900 000 Ft
Méret: 136 négyzetméter
Azonosító: 11458149
Irodai azonosító: 376748
Cím: Nagy telekkel központi helyen
Telek: 2881 négyzetméter
Ingatlan állapota: Átlagos
Jelleg: családi ház
Építőanyag: Kérdezzen rá a hirdetőtől »
Fűtés jellege: Cirkó
Fűtés módja: Gáz
Komfort fokozat: Összkomfort
Kor: 50 évesnél régebbi
Szintek száma: Földszintes
Egész szobák: 2
Fél szobák: 1

Egyéb jellemzők

  • Csatorna
  • Garázs
  • Pince
  • Terasz

Térkép


Így keressen budapesti ingatlant négy egyszerű lépésben. Csupán 2 perc, kötelezettségek nélkül!

Szűkítse a budapesti ingatlanok
listáját
Válassza ki a megfelelő
budapesti ingatlant
Írjon a hirdetőnek
Várjon a visszahívásra