Eladó családi ház Balatonalmádi 129 000 000 Ft

Leírás

Eladó családi ház Balatonalmádiban – patakparton, csendes zsákutcában!

Álmodozik egy nyugodt, természetközeli otthonról a Balatonnál?
Most valóra válthatja!

- Az ingatlant egy bájos patak szegélyezi, a telken pedig saját kút is található – tökéletes választás, ha Ön számára fontos a természet közelsége és az önellátás lehetősége.

- A ház kiváló elosztású, ideális állandó lakhatásra vagy nyaralónak is.
- A Balaton partja csupán 15 percre elérhető, ugyanakkor a környezet
nyugalma garantált.
- A telek tágas, kertészkedésre, pihenésre is alkalmas.
-Többféle gyümölcsfa és fenyőfa is található a kissé vadregényes hátsó kertben.
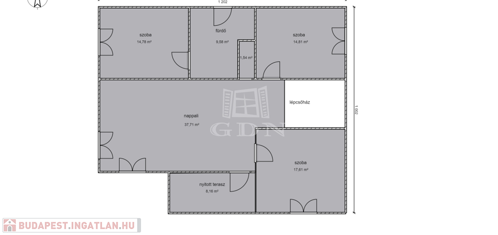
- A lakószintek közüzemileg egymástól leválaszthatóak, így két külön bejáratú 95 nm-es lakás is kialakítható.
- Ezáltal befektetők számára is remek lehetőség, továbbá akár bérbe is adható.


Amennyiben a veszprémi GDN Ingatlaniroda által kínált a nyugalom szigetén elhelyezkedő balatonalmádi családi ház, vagy bármely, a kínálatunkban található ingatlan felkeltette érdeklődését, forduljon hozzám bizalommal!

Ingatlanirodánk díjmentes, banksemleges hitelügyintézéssel, illetve ügyvédi tanácsadással is áll Ügyfeleink rendelkezésére!

Családi ház részletei

Ár: 129 000 000 Ft
Méret: 196 négyzetméter
Azonosító: 11539393
Irodai azonosító: 383118
Cím: Vörösberény
Telek: 957 négyzetméter
Ingatlan állapota:
Jelleg: családi ház
Építőanyag: Kérdezzen rá a hirdetőtől »
Komfort fokozat: Összkomfort
Kor: 21-50 éves
Szintek száma: 1 szint
Egész szobák: 7

Egyéb jellemzők

  • Csatorna
  • Garázs
  • Pince
  • Terasz

Térkép


Így keressen budapesti ingatlant négy egyszerű lépésben. Csupán 2 perc, kötelezettségek nélkül!

Szűkítse a budapesti ingatlanok
listáját
Válassza ki a megfelelő
budapesti ingatlant
Írjon a hirdetőnek
Várjon a visszahívásra