Eladó családi ház Alsóörs 299 000 000 Ft

Leírás

Luxusvilla • Balaton közelében
Prestige Balaton Residence — ahol a luxus találkozik a balatoni békével
Ár: 299 000 000 Ft
260 m² · Nettó hasznos alapterület: 146 m² · 4 háló · 3 fürdő · 2 külön wc · 510 m² telek

Van egy hely, ahol a csend nem üresség, hanem nyugalom. Ez a 2024-ben teljeskörűen felújított, kétszintes luxusvilla a modern eleganciát és a természet közelségét egyesíti — medence, panoráma, prémium kivitelezés, a legmagasabb elvárásoknak is megfelelő kivitel, mindössze pár perc séta a Balatonhoz.

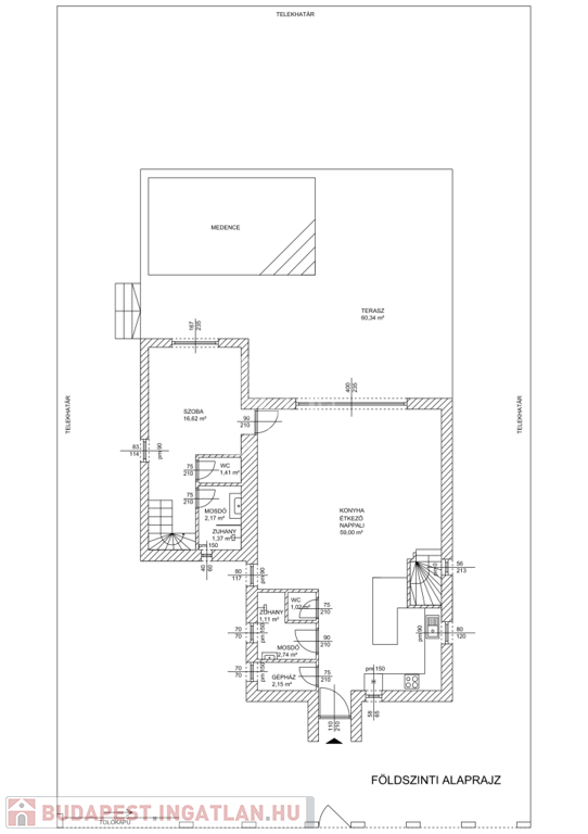
Főbb jellemzők
Teljes terület 260 nm
Nettó hasznos alapterület 146 nm
Telek 510 nm, sík
Elhelyezkedés 600 m a Balatontól · csendes utca
Építés / felújítás1990 / teljes felújítás 2024
Fűtés Padlófűtés + hőszivattyú
Medencés terasz 60 nm
Padlás 23 nm
Tágas, teraszkapcsolatos nappali
Konyha - étkező
Egyedi tervezésű, Venato Bianco munkalap és beépített Whirlpool készülékek
4 hálószoba (3 az emeleten)
3 fürdő, padlófűtéssel, panorámás kád
Hőszivattyú és gépészet a földszinten
Térkövezett parkoló 3 autó részére, TESLA töltő

Ez az otthon nem csupán egy ingatlan — életstílus. A belső terek modern, prémium anyagokból készültek: olasz 60×120 cm padlólapok, Venato Bianco slimline munkalap, szálcsiszolt rozsdamentes acél élvédők és biztonsági üvegkorlátok. A fürdőszobák okostükörrel, digitális hőmérséklet-kijelzős csaptelepekkel és padlófűtéssel felszereltek. A villa minden tekintetben a legmagasabb igényeket is kielégíti.
A kültér déli fekvésű: a medence és a terasz egész nap napfényben fürdik. Az automata öntözőrendszer és a robotfűnyíró biztosítja a gondozásmentes kertet. A terület csendes, barátságos környék – kávézó és olasz étterem pár perc sétára.

Bővebb információért keressen bizalommal!
Fehér Judit
06 70 376 2475

Családi ház részletei

Ár: 299 000 000 Ft
Méret: 146 négyzetméter
Azonosító: 11575941
Irodai azonosító: 389156
Cím: Alsóörs
Telek: 510 négyzetméter
Ingatlan állapota: Felújított
Jelleg: családi ház
Építőanyag: Tégla
Fűtés jellege: Geotermikus
Fűtés módja: Hőszivattyú
Komfort fokozat: Luxus komfort
Kor: 21-50 éves
Szintek száma: 1 szint
Egész szobák: 4

Egyéb jellemzők

  • Csatorna
  • Garázs
  • Pince
  • Terasz

Térkép


Így keressen budapesti ingatlant négy egyszerű lépésben. Csupán 2 perc, kötelezettségek nélkül!

Szűkítse a budapesti ingatlanok
listáját
Válassza ki a megfelelő
budapesti ingatlant
Írjon a hirdetőnek
Várjon a visszahívásra