Eladó családi ház Albertirsa 58 500 000 Ft

Leírás

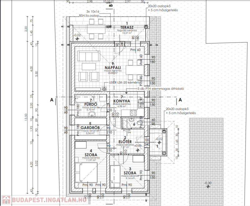
Albertirsa és környéke – Építse meg álmai otthonát saját telkén!Ha már rendelkezik építési telekkel, kivitelező partnerünk vállalja modern családi ház megépítését kulcsrakészen, 780.000 Ft/m² áron. Az alaprajz és a műszaki tartalom igény szerint alakítható.Műszaki tartalom (röviden):Vasbeton sávalap • Porotherm falazat • fafödém cellulóz szigeteléssel • Terrán tető • hőszigetelt homlokzat • műanyag külső / fa belső nyílászárók • padlófűtés + kondenzációs kazán • 3,5 kW klíma • 2,8 kW napelem • laminált padló 5.000 Ft/m²-ig • járólap/csempe 7.000 Ft/m²-ig • festett falak • szaniterek 250.000 Ft-ig • épített zuhany • törölközőszárítós radiátor • 1×32 A elektromos hálózat • redőny előkészítés • térkövezett járda és teraszkapcsolat.A kivitelezés a szerződéskötést és foglalót követően indul, várható átadás 6–8 hónap.A fotók korábbi, sikeresen megvalósított referenciamunkáinkból származnak.Fontos: az ár nem tartalmazza a telek árát és a közművesítést, ezek a telek tulajdonosának feladatai.Szolgáltatásaink ingyenesek.Hétvégén is várom hívását: 06 20 400 4009Alitisz Judit

Családi ház részletei

Ár: 58 500 000 Ft
Méret: 75 négyzetméter
Azonosító: 11607205
Telek: 500 négyzetméter
Ingatlan állapota: Kitűnő
Jelleg: családi ház
Építőanyag: Kérdezzen rá a hirdetőtől »
Fűtés jellege: Cirkó
Komfort fokozat: Összkomfort
Egész szobák: 3

Egyéb jellemzők

  • Csatorna
  • Garázs
  • Kábel TV
  • Melléképület
  • Parketta
  • Pince
  • Terasz

Így keressen budapesti ingatlant négy egyszerű lépésben. Csupán 2 perc, kötelezettségek nélkül!

Szűkítse a budapesti ingatlanok
listáját
Válassza ki a megfelelő
budapesti ingatlant
Írjon a hirdetőnek
Várjon a visszahívásra