Eladó családi ház Albertirsa 118 000 000 Ft

Leírás

Eladó új építésű családi ház Albertirsán – tágas, földszintes, modern otthon kiváló elhelyezkedéssel
Miért éppen Albertirsa?
Albertirsa egyre népszerűbb választás azok számára, akik a főváros közelségét szeretnék ötvözni a nyugodt, élhető környezettel. Budapest autóval és vonattal is könnyen és gyorsan elérhető, így ideális választás ingázóknak is. A város folyamatosan fejlődik, infrastruktúrája kiváló, miközben megőrizte barátságos, kisvárosi hangulatát.
Ebben a kellemes, csendes környezetben kínálok megvételre egy 2023-ban épült, modern családi házat, amely egy kétlakásos társasház utcafronti lakása.
Az ingatlan különlegessége, hogy az utcafronton nem maga a lakótér, hanem egy 37 m²-es, dupla állásos garázs helyezkedik el, motoros, szekcionált garázskapuval. A garázs előtt viacolorral burkolt, több autó parkolására is alkalmas terület található. A kert megközelíthető a garázson keresztül, illetve egy külön kiskapun át is.
A garázs és a lakóház között egy részben fedett terasz biztosít kényelmes átjárást.
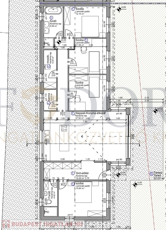
A ház 127 m² hasznos alapterületű, kiváló elrendezéssel:
• amerikai konyhás nappali
• 4 külön nyíló hálószoba
• 2 fürdőszoba (egyik zuhanyzós, másik zuhanyzóval és sarokkáddal)
• kamra
• háztartási helyiség
A nappaliból közvetlen kijárat nyílik egy 22 m²-es teraszra, amely ideális családi vagy baráti összejövetelekhez.
Műszaki tartalom:
• Fujitsu hőszivattyús rendszer
• padlófűtés
• szobánként szabályozható hűtő-fűtő fan-coil (Galetti Flat)
• H tarifa + 3x20 Amper
• 3 rétegű, kiváló hő- és hangszigetelésű nyílászárók
• külön mérőórák
• 10 cm dryvit szigetelés
A ház rendkívül világos, modern kialakítású, azonnal költözhető állapotban van.
Az ingatlanhoz tartozik egy kb. 600 m²-es, lekerített telekrész, amely ideális kertészkedésre, pihenésre vagy családi életre. A kerítés WPC, gondozás és kezelés mentes anyagból készült.
Elhelyezkedése kiváló: Albertirsa központjához közel, mégis csendes, aszfaltozott mellékutcában található.
Ez az ingatlan tökéletes választás mindazok számára, akik egy modern, kényelmes, alacsony fenntartású otthont keresnek jó közlekedéssel, nyugodt környezetben.
Az ingatlan ára 118 MFt.
Keressen bizalommal további információért, alaprajzokért és személyes egyeztetésért!
A leírás és az alaprajz kizárólag tájékoztató jellegű.
IRODÁNK INGYENES HITELÜGYINTÉZÉSSEL, TANÁCSADÁSSAL, SZÁMOS BANK AJÁNLATÁVAL ÉS ÚJ CSOK PLUSZ FOLYÓSÍTÁSÁVAL VÁRJA ÜGYFELEIT.

Családi ház részletei

Ár: 118 000 000 Ft
Méret: 127 négyzetméter
Azonosító: 11611237
Irodai azonosító: 351622
Telek: 600 négyzetméter
Ingatlan állapota: Kitűnő
Jelleg: ikerház
Építőanyag: Tégla
Komfort fokozat: Dupla komfort
Kor: Új építésű
Egész szobák: 5

Egyéb jellemzők

  • Garázs
  • Terasz

Így keressen budapesti ingatlant négy egyszerű lépésben. Csupán 2 perc, kötelezettségek nélkül!

Szűkítse a budapesti ingatlanok
listáját
Válassza ki a megfelelő
budapesti ingatlant
Írjon a hirdetőnek
Várjon a visszahívásra