Eladó családi ház Alattyán 11 499 000 Ft

Leírás

Jászberényi CasaNetWork ingatlaniroda megvételre kínál, Alattyán községben, egy tégla építésű családi házat!

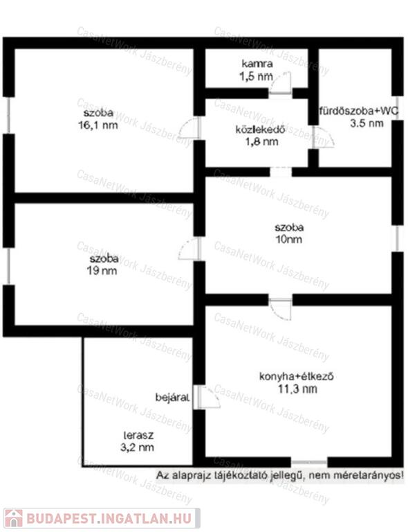
Alattyán csendes, nyugodt részén kínálunk megvételre, egy 63 nm-es, 3 szobás, tégla építésű családi házat, amely kiváló lehetőséget rejt magában mindazok számára, akik saját ízlésük szerint szeretnék kialakítani otthonukat.

Az ingatlan jó állapotú, de felújítást igényel. A ház szigetelt beton alapzatra épült, három külön nyíló szoba, konyha étkezővel, fürdőszoba WC-vel egyben, valamint egy közlekedő és egy kamra áll rendelkezésre

A belső nyílászárók anyaga: fa, a külső nyílászárók anyaga: műanyag, dupla szigeteléssel, redőnnyel ellátva, tetőszerkezete: fa sátortető, cserép fedéssel, fa födém szerkezet,10 cm-es üveggyapot szigeteléssel, mely 2022-ben került felhelyezésre. 

A hangulatos kis terasz ( 3,2 nm ) kellemes kikapcsolódást nyújt, a tágas telek számos lehetőséget kínál- akár kertészkedésre, akár bővítésre vagy egyéb fejlesztésekre.

A telken egy könnyűszerkezetes garázs is megtalálható, mely kényelmes parkolást biztosít.

Ha egy jó adottságokkal rendelkező, felújítással remek otthonná alakítható ingatlant keres, akkor ne hagyja ki ezt a lehetőséget!

Helyközi buszjárat segíti a mindennapi közlekedést, Jászberény 16 km, Szolnok 34 km távolságra. A faluban megtalálgatók kisebb boltok, dohánybolt, Coop Szupermarket, posta, gyógyszertár, iskola, óvoda, Községház.

Az ingatlan per, igény-és tehermentes, azonnal birtokba vehető!

Amennyiben a fenti 182100499-es azonosító számú eladó családi ház, vagy bármely kínálatunkban található ingatlan felkeltette érdeklődését, hívjon a megadott telefonszámon!

/ A hirdetésben szereplő információk a megbízótól kapott adatok alapján készültek. /

Irodánk teljes körű szolgáltatással áll ügyfelei rendelkezésére: hitelügyintézés, ügyvédi szolgáltatás, ingatlan értékbecslés, energetikai tanúsítvány készítése.

CasaNetWork - Ingatlanban otthon vagyunk!

Családi ház részletei

Ár: 11 499 000 Ft
Méret: 63 négyzetméter
Azonosító: 11612180
Irodai azonosító: 182100499
Telek: 1000 négyzetméter
Ingatlan állapota: Felújítandó
Jelleg: családi ház
Építőanyag: Tégla
Fűtés jellege: Cirkó
Komfort fokozat: Összkomfort
Bútorozott: Bútorozott
Egész szobák: 3

Így keressen budapesti ingatlant négy egyszerű lépésben. Csupán 2 perc, kötelezettségek nélkül!

Szűkítse a budapesti ingatlanok
listáját
Válassza ki a megfelelő
budapesti ingatlant
Írjon a hirdetőnek
Várjon a visszahívásra