Eladó családi ház Ádánd 120 000 000 Ft

Leírás

Kétgenerációs családi ház hatalmas telekkel a Balaton közelében - Ádándon eladó!
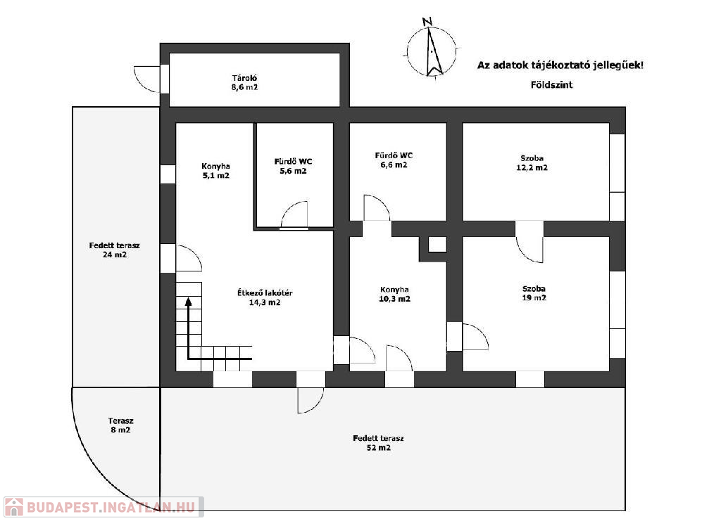
Eladásra kínálunk Ádándon, a központtól mindössze 1 km-re, egy 8975 m2-es telken fekvő, 129 m2-es, két lakrészes családi házat, mely 2017-ben teljes körű belső felújításon esett át: víz- és villanyhálózat csere, burkolatok megújítása, valamint tetőtér-beépítés történt.
Az épület földszintje vastag vályog falakkal rendelkezik, a tetőtér téglaépítésű, így egyszerre nyújt kiváló hőszigetelést és stabilitást. A házhoz tartozik egy összesen 84 m2-es terasz, amelyből 76 m2 fedett, így bármilyen időben kényelmesen használható.
A kert különlegessége egy 12 m2-es, 120 cm mély medence, valamint kutyakedvelők számára egy kiépített kutyakennel. Emellett két tároló is rendelkezésre áll (8,6 m2 és 20 m2), illetve egy ásott kút biztosítja a vízellátást a kert öntözéséhez, vagy a medence feltöltéséhez.
A ház klimatizált, a jelenlegi fűtés klímaberendezésekről működik, de a központi fűtéshez minden elő van készítve: a földszinten radiátoros és padlófűtés került kiépítésre, a tetőtérben radiátorok kerültek felszerelésre. A nagy teljesítményű 3x32 Amper áramellátás számos lehetőséget biztosít a jövőbeni fejlesztésekhez is.
A zárt udvarban több autó számára is biztosított a parkolás.
Az ingatlan 2 helyrajzi számon nyilvántartott, így a ház 5777 m2 telekkel és a mellette elhelyezkedő 3198 m2-es telek külön-külön is megvásárolható.
A Balaton partja csupán 10 km-re található, így ez az ingatlan ideális lehet állandó otthonnak, nyaralónak vagy akár vendégháznak is!
Ne hagyja ki ezt a páratlan lehetőséget - kérjen időpontot még ma!

Referencia szám: M305261

Családi ház részletei

Ár: 120 000 000 Ft
Méret: 111 négyzetméter
Azonosító: 11541210
Irodai azonosító: M305261-4960110
Telek: 8975 négyzetméter
Ingatlan állapota: Kitűnő
Jelleg: családi ház
Építőanyag: Vályog
Fűtés jellege: Villany
Fűtés módja: Villany
Komfort fokozat: Komfort
Kor: 50 évesnél régebbi
Szintek száma: 1 szint
Egész szobák: 5

Egyéb jellemzők

  • Garázs

Térkép


Így keressen budapesti ingatlant négy egyszerű lépésben. Csupán 2 perc, kötelezettségek nélkül!

Szűkítse a budapesti ingatlanok
listáját
Válassza ki a megfelelő
budapesti ingatlant
Írjon a hirdetőnek
Várjon a visszahívásra