Kiadó lakás Gödöllő 230 000 Ft

Leírás

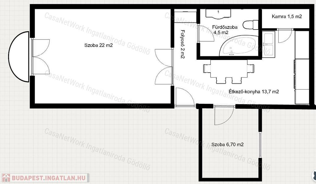
CasaNetWork Gödöllő Ingatlaniroda kínálatában BÉRBEADÓ társasházi lakás  a Dózsa Gy úton (Szilhát utca sarkán), hosszútávra. 

A lakás frissen festett, részben bútorozott, a képeknek megfelelően. 

Egy világos, erkélyes nappali és  egy félszobát kínál a kedves kis lakás.  Az étkező és a konyha egylégterű, kényelmes kisebb családnak. Elektromos sütő és gázfőző áll rendelkezésre. 

Az abalakok jól szigetelő thermo üveggel és  redőnnyel felszereltek. Kondenzációs gázkazán biztosítja a fűtést, minden egyedi mérés alapján fizetendő. Alacsony a közös költsége. (12,500 Ft/hó). 2 havi kuciót kér a tulajdonos.  

1 gépkocsi részére van felszínii beálló, ami sorompóval lezárt. 

Ingyenes hitel tanácsadással, ügyvédi kapcsolattal és rugalmas időbeosztással állunk kedves ügyfeleink rendelkezésére! CASANETWORK - Ingatlanban otthon vagyunk

Lakás részletei

Ár: 230 000 Ft/hónap
Méret: 51 négyzetméter
Azonosító: 11602100
Irodai azonosító: 166401945
Emelet: Földszint
Építőanyag: Tégla
Fűtés jellege: Cirkó
Ingatlan állapota:
Egész szobák: 1
Fél szobák: 1

Így keressen budapesti ingatlant négy egyszerű lépésben. Csupán 2 perc, kötelezettségek nélkül!

Szűkítse a budapesti ingatlanok
listáját
Válassza ki a megfelelő
budapesti ingatlant
Írjon a hirdetőnek
Várjon a visszahívásra