Kiadó lakás Budapest XXI. ker 320 000 Ft

Leírás

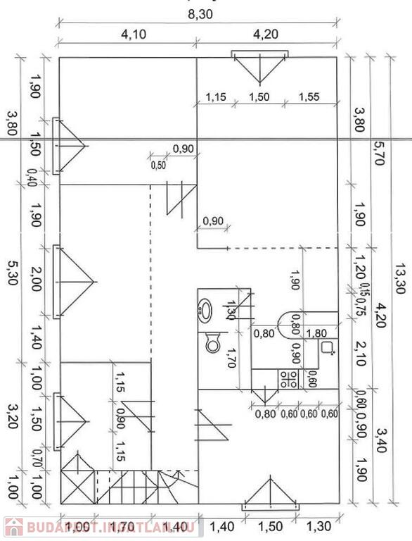
Kiadó iroda Csepelen – Kossuth Lajos utca 30–46. - IRODA HELYISÉG



Kiadó Csepelen, a Kossuth Lajos utca 30–46. szám alatt egy 112 m² alapterületű, kétszintes, világos és jól beosztású irodahelyiség-együttes. Az ingatlan öt különálló irodahelyiségből áll, így ideális választás lehet ügyvédi irodának, könyvelőirodának, IT cégnek, tanácsadó vállalkozásnak vagy bármilyen más adminisztratív tevékenységet végző cég számára.



Az iroda nem akadálymentesített, a helyiségek lépcsőn keresztül közelíthetők meg. Ezért kérjük, hogy az érdeklődők ezt a szempontot is vegyék figyelembe a megtekintés előtt.



Az alsó szinten egy tágas előtér található, ahol egy mosdóhelyiség és egy nagy tárolószekrény is helyet kapott. Itt található a villanyhálózat is, amely 3×16 amper teljesítményű, valamint ipari áram is rendelkezésre áll. A felső szinten öt különálló irodahelyiség, egy tárgyaló, egy teljesen felszerelt konyha, valamint egy külön mosdóhelyiség található.



A konyha gépesített, mosogatógéppel, hűtőszekrénnyel és mikróval felszerelt. Az iroda világos és napos fekvésű, így a munkakörnyezet kellemes és inspiráló. Az épület csendes, nyugodt környezetben található, mégis könnyen megközelíthető, hiszen a HÉV-megálló és a buszmegálló néhány perces sétával elérhető.



Az épületben központi fűtés működik, egyedi mérőórákkal ellátva, így a fogyasztás pontosan nyomon követhető. A fűtés díja fix 9.300 forint/hó. A közös költség 30.000 forint, a szemétdíj 2.900 forint havonta. Az irodaház kamerarendszerrel és őrzéssel is rendelkezik, amely folyamatos biztonságot garantál.



A berendezés részben maradhat, ez megegyezés tárgyát képezi. Ha a bérlőnek valamire nincs szüksége, az eltávolítható. Az internet-hozzáférés igény szerint biztosított, szintén megállapodás alapján. A parkolás az épület előtt és a környéken ingyenes.



A bérleti díj 320.000 forint + ÁFA/hó. Egy évnél hosszabb bérleti idő esetén az ár egyéni megállapodás alapján kedvezményesen módosítható.



Ez az iroda tökéletes választás azok számára, akik egy kényelmes, biztonságos és modern munkahelyet keresnek Csepelen, frekventált, mégis nyugodt környezetben.

Lakás részletei

Ár: 320 000 Ft/hónap
Méret: 112 négyzetméter
Azonosító: 11575597
Irodai azonosító: 23679
Emelet: 1. emelet
Építőanyag: Kérdezzen rá a hirdetőtől »
Fűtés jellege: Házközponti (egyedi mérővel)
Ingatlan állapota: Átlagos
Egész szobák: 5

Így keressen budapesti ingatlant négy egyszerű lépésben. Csupán 2 perc, kötelezettségek nélkül!

Szűkítse a budapesti ingatlanok
listáját
Válassza ki a megfelelő
budapesti ingatlant
Írjon a hirdetőnek
Várjon a visszahívásra