Kiadó lakás Budapest XIII. ker 390 000 Ft

Leírás

Kiadó egy jó állapotú, téglaépítésű lakás Budapest szívében jól karbantartott házban, a Bulcsú utcában.
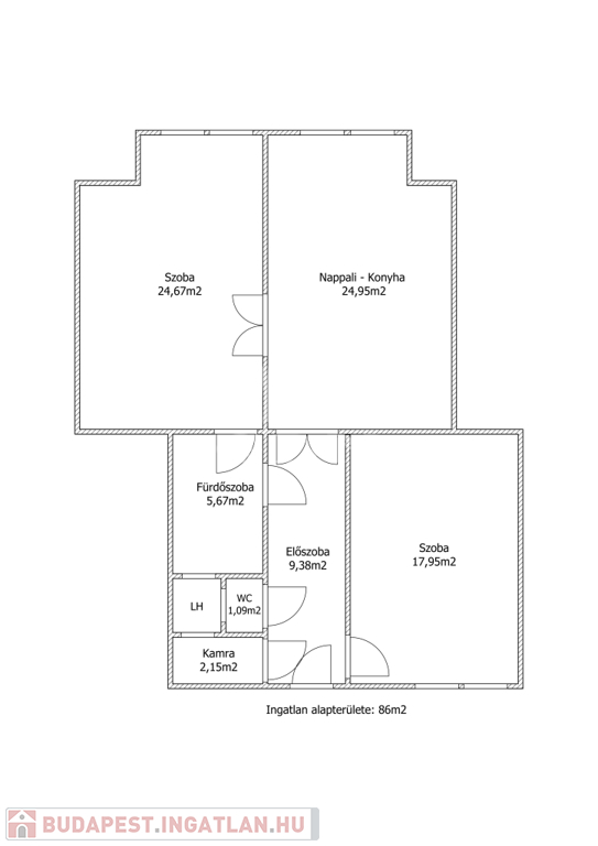
A lakás 86 négyzetméteres, a második emeleten helyezkedik el.
Az ingatlan három szobával rendelkezik, ideális választás lehet családok vagy egyetemisták számára.
A fűtést gázkonvektor biztosítja, ami gazdaságos megoldás a téli hónapokban.
A lakásból az utcai kilátás nyílik, ami a forgalmas környezet miatt mindig élettel teli.
A közlekedés kiválóé, több busz és villamosvonal is elérhető a közelben.

A lakás bérleti díja 390.000 Ft + rezsi, 2 havi kaucióval, munkáltatói igazolással, határozatlan idejű munkaszerződéssel, és közjegyzői bérleti szerződéssel vehető bérbe. A közjegyző költsége a bérlőt terheli.

Lakás részletei

Ár: 390 000 Ft/hónap
Méret: 86 négyzetméter
Azonosító: 11604858
Irodai azonosító: 393493
Cím: Bulcsú utca
Emelet: 2. emelet
Építőanyag: Tégla
Fűtés jellege: Konvektoros
Ingatlan állapota:
Komfort fokozat: Komfort
Építési év: 50 évesnél régebbi
Tulajdonviszony: Saját
Kilátás: utcai
Egész szobák: 3

Egyéb jellemzők

  • Erkély
  • Garázs
  • Lift
  • Pince
  • Tároló

Térkép


Így keressen budapesti ingatlant négy egyszerű lépésben. Csupán 2 perc, kötelezettségek nélkül!

Szűkítse a budapesti ingatlanok
listáját
Válassza ki a megfelelő
budapesti ingatlant
Írjon a hirdetőnek
Várjon a visszahívásra