Kiadó lakás Budapest XII. ker, Orbánhegy, 235 000 Ft

Leírás

Kiadásra kínáljuk az Orbánhegyen, Tamási Áron utcában frissen felújított 43,5 mm–es, 1,5 szobás, 1. emeleti erkélyes, légkondicionálóval felszerelt lakást. A lakásban a dohányzás nem megengedett, kisállat nem megengedett. A társasház környezete rendezett, fákkal, virágokkal beültetett. A környék zöld, jó levegőjű, mégis kiváló tömegközlekedési kapcsolatokkal rendelkezik.

A LAKÁS

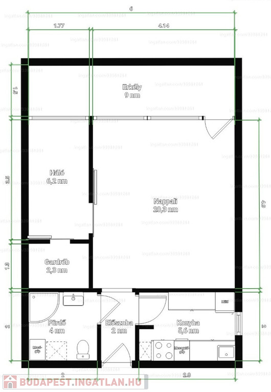
Csúszózsalus, 9 emeletes, liftes társasház első emeletén található, 1,5 szobás, nagy erkélyes, házközponti fűtéses. A bejárati ajtón belépve az előszobába érkezünk, ahonnan jobbra és balra nyílik a konyha és a fürdő-WC. A konyha ajtóval zárható, valamint ablakkal rendelkezik. Egyedi beépített konyhabútor biztosítja a jó helykihasználását, fagyasztós hűtő, gáz főzőlap, a légkeveréses sütő, valamint a teljesen új 9 terítékes mosogatógép pedig a kényelmet. A fürdőszobában található a felültöltős mosógép (szintén új), új zuhanyfülke termosztátos csapteleppel, valamint a WC. A melegvizet 1 éves villanybojler szolgáltatja. Az előszobából nyílik a nappali, mely rendkívül világos a hatalmas ablakoknak köszönhetően. Itt került elhelyezésre a légkondicionáló, valamint innen nyílik a 9 négyzetméteres erkély, mely a lakás teljes szélességében végigfut. A nappaliból nyílik a félszoba, mely háló vagy dolgozó szobának is kiválóan alkalmas, s egy tükrös beépített gardróbot tartalmaz. A lakáshoz tartozik egy kb. 2 négyzetméteres tároló a ház pincéjében.
Valamennyi nyílászáró műanyag, az ablakok és az erkélyajtó is redőnyökkel felszerelt. Az előszobában és a szobákban parketta található, a többi helyiség burkolata padlólap. A lakás 2010-ben teljes körűen felújítására került (mely során többek között a teljes elektromos- és vízhálózat, valamint a nyílászárók kicserélésre kerültek), majd 2024 januárjában ismét felújítottuk, mely során a parketta újra lett csiszolva és lakkozva, új zuhanykabin és csaptelep lett beépítve, valamint a falak és a plafon újra lettek festve, az ajtók mázolva. Ekkor került beszerzésre a mosógép és a mosogatógép is.

A KÖRNYÉK

A lakás a Tamási Áron utca felső, csendes szakaszán található, az utcában átmenő forgalom nincs. A parkolás a ház előtt ingyenes. A belváros a 110 és 112-es buszokkal (25 perc), a Széll Kálmán tér a 102-es busszal (18 perc) érhető el, melyek megállója néhány perc sétatávolságra található. A környéken boltok, óvoda, iskola található, valamint a Budai-hegység kedvelt kirándulóhelyei is könnyen elérhetőek.

A KÖLTSÉGEK

A bérleti díj 235 000 Ft/hó, ezen felül fizetendő a közös költség (jelenleg 20 700 Ft, mely tartalmazza a fűtés és a víz díját), valamint a villany és gáz a tényleges fogyasztás alapján (kb. 15-17 000 Ft). A lakás szerződéskötést követően, 2 havi kaució és az első havi bérleti megfizetése után azonnal költözhető. Minimum bérleti időtartam 1 év. A bérleti dí havonta, átutalással fizetendő.

Hétvégen is várom hívását!

Lakás részletei

Ár: 235 000 Ft/hónap
Méret: 39 négyzetméter
Azonosító: 11350754
Városrész: Orbánhegy
Erkély mérete: 9.00 négyzetméter
Rezsi: 15 000 Ft/hó
Emelet: 1. emelet
Építőanyag: Kérdezzen rá a hirdetőtől »
Fűtés jellege: Házközponti
Ingatlan állapota: Felújított
Komfort fokozat: Összkomfort
Bútorozott: Részben bútorozott
Kilátás: utcai
Egész szobák: 1
Fél szobák: 1
Nappalik: 1

Egyéb jellemzők

  • Erkély
  • Klíma
  • Lift

Így keressen budapesti ingatlant négy egyszerű lépésben. Csupán 2 perc, kötelezettségek nélkül!

Szűkítse a budapesti ingatlanok
listáját
Válassza ki a megfelelő
budapesti ingatlant
Írjon a hirdetőnek
Várjon a visszahívásra