Az értékesítő:
Poráczki Ádám
+36 70 716 9411

Albérlet, kiadó családi ház Hajdúszoboszló, Belváros, 2 500 000 Ft/hónap, 337 négyzetméter

2 500 000 Ft/hónap
családi ház, 337 négyzetméter
Egész szobák:
14
Ingatlan állapota:
Azonosító:
11615386
Értékesítés típusa:
kiadó
Ingatlan típusa:
családi ház
Jelleg:
Családi ház
Település:
Hajdúszoboszló
Alapterület:
337
Telekterület:
664
Ár:
2 500 000 Ft/hónap
Fűtés jellege:
Konvektoros
Terasz:
Nincs
Erkély:
Van
Melléképület:
Nincs
Pince:
Nincs
Parketta:
Nincs
Kábel TV:
Nincs
Telekterület típusa:
négyzetméter
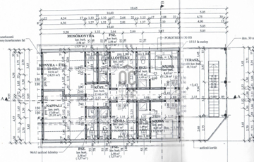
Hajdúszoboszlón hosszú távra kiadó egy kiváló adottságokkal rendelkező apartmanház-együttes, amely 25 fő elhelyezésére alkalmas. Az ingatlan két különálló épületből áll, összesen 14 szobával és 11 zuhanyzós fürdőszobával. A különböző méretű szobák és lakrészek ideálisak munkások, brigádok elszállásolására. A ház csendes utcában található, mégis közel a városközponthoz. A 664 m²-es telken elhelyezkedő ingatlan saját udvarral rendelkezik, ahol több autó parkolása is megoldott. A kialakítás lehetővé teszi a kényelmes, mégis gazdaságos lakhatást nagyobb létszám számára. A sok fürdőszoba és a tagolt elrendezés biztosítja, hogy a mindennapi használat gördülékeny legyen. Az ingatlan jelenleg felújítás és átalakítás alatt áll, május közepén birtokba vehető. 11 db légkondicionáló kerül beszerelésre az ingatlanba. H tarifát megigényelte a tulajdonos, így az ingatlan fűtése is költséghatékonyan megoldott. Bérleti díj: 2.500.000 Ft/hó + rezsi Kaució: 2 havi bérleti díj Minimum bérleti idő 1 év! Ha megbízható, nagy kapacitású szállást keresel munkavállalóid számára, ne hagyd ki ezt a lehetőséget! Keress bizalommal, és egyeztessünk időpontot a megtekintésre!
https://budapest.ingatlan.hu/alberlet/kiado/haz/hajduszoboszlo/3-millio-ft;337-negyzetmeter;14-szoba;konvektoros-futes/11615386