Az értékesítő:
Szűcs Adrienn
+36 70 698 5169

Eladó családi ház Zamárdi, 217 000 000 Ft, 193 négyzetméter

217 000 000 Ft
családi ház, 193 négyzetméter
Építőanyag:
Tégla
Egész szobák:
7
Komfort fokozat:
Komfort
Fűtés módja:
Gáz
Ingatlan állapota:
Kitűnő
Azonosító:
11615014
Értékesítés típusa:
eladó
Ingatlan típusa:
családi ház
Jelleg:
Ikerház
Település:
Zamárdi
Alapterület:
193
Telekterület:
530
Ár:
217 000 000 Ft
Szintek száma:
1 szint
Fűtés jellege:
Konvektoros
Kor:
21-50 éves
Erkély:
Van
Telekterület típusa:
négyzetméter
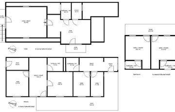
Balaton déli part, Zamárdi, vízpart közeli 193 m2 családi ház és apartman, 530 m2 telek eladó. Az ingatlan a közkedvelt település üdülőövezetében helyezkedik el, 300 méterre, gyalog 4 percre a Balaton-parttól, szabadstrandtól. Az évek óta jól működő apartmanház működtetése már erre a szezonra is átvehető, de kisebb átalakítással tökéletes családi házzá alakítható állandó lakhatásra vagy nyaralásra. Jelenlegi állapotában az egy, illetve kétszobás apartmanok összesen 20 fő befogadására alkalmasak. Az összesen 169 m2 lakóteret 49 m2 terasz és erkély növeli. Az áramellátást napelem biztosítja, így a havi rezsiköltség csak 8 ezer Ft. Az egyes lakrészek különböző komfortfokozattal rendelkeznek, van köztük gázkonvektorral fűtött és klimatizált is. A zárt, térköves udvaron 5 autó elhelyezésére van lehetőség, a füves udvarrész pedig tökéletes hely a pihenésre, családi és baráti összejövetelekre, a gyerekeknek játszótérre. Az ingatlan azonnal használatba vehető, nagycsaládoknak, több generációs családoknak, baráti társaságoknak, vagy befektetési céllal részben vagy egészben kiadásra, nyaraltatásra, üzleti vállalkozásra is kiválóan alkalmas. A szabadstrand mellett kikötő, éttermek, bolt, fagyizó, vasútállomás párszáz méteren belül elérhető, állandó lakhatáshoz pedig óvoda és iskola is biztosított. Ritka, egyedi lehetőség sokféle elképzelés, terv megvalósítására. Bővebb információért keressen telefonon! M326765 Referencia szám: M326765
https://budapest.ingatlan.hu/elado/haz/zamardi/217-millio-ft;193-negyzetmeter;8-szoba;konvektoros-futes/11615014