Az értékesítő:
dr. Nagy Rebeka
+36 70 703 0011

Albérlet, kiadó lakás Budapest III. ker, 649 999 Ft/hónap, 107 négyzetméter

649 999 Ft/hónap
lakás, 107 négyzetméter
Építőanyag:
Tégla
Egész szobák:
5
Komfort fokozat:
Dupla komfort
Ingatlan állapota:
Kitűnő
Azonosító:
11613523
Értékesítés típusa:
kiadó
Ingatlan típusa:
lakás
Település:
Budapest III. ker
Alapterület:
107
Ár:
649 999 Ft/hónap
Kilátás:
kertre néző
Erkély:
Nincs
Kocsibeálló:
Van
Pince:
Nincs
Lift:
Nincs
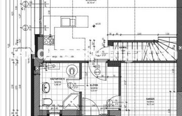
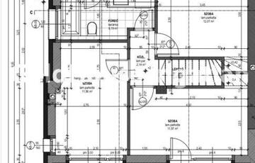
Kiadó egy újszerű, tágas és kiváló elosztású, belső kétszintes, 107 m²-es lakás Budapest III. kerületének közkedvelt, zöldövezeti részén, Aranyhegyen! Az ingatlan 2026 júniusától költözhető, és ideális választás családok számára, akik nyugodt, kertvárosias környezetben keresnek hosszú távú otthont. Az alsó szinten egy világos, amerikai konyhás nappali-étkező kapott helyet, amely közvetlen kapcsolatban áll a terasszal és a gondozott kerttel, így tökéletes teret biztosít a mindennapi élethez és a kikapcsolódáshoz egyaránt. Ezen a szinten található egy külön hálószoba is, amely a korábbi garázs helyén került kialakításra, továbbá egy zuhanyzós fürdőszoba WC-vel. Az emeleten három külön nyíló, egyenként körülbelül 12 m²-es szoba helyezkedik el, valamint egy kádas fürdőszoba WC-vel, amely kényelmesen kiszolgálja a család igényeit. Fontos kiemelni, hogy a lakáshoz garázs nem tartozik, azonban közvetlenül az ingatlan előtt két gépkocsi számára biztosított a parkolás. Az ingatlan bútorozatlanul kerül bérbeadásra, ugyanakkor a modern konyhabútor és a beépített konyhagépek – mosogatógép, sütő, kerámialap és szagelszívó – a lakás részét képezik. A fürdőszobák mosdópultokkal felszereltek, továbbá klímaberendezések, lámpatestek, riasztórendszer és függönyök is rendelkezésre állnak. A lakás műszaki felszereltsége kiemelkedő: kondenzációs gázkazán biztosítja a fűtést és a melegvíz-ellátást, amely korszerű felületfűtéssel – padló-, fal- és mennyezetfűtéssel – működik, így rendkívül gazdaságos és komfortos. A hűtésről minden lakószobában külön split klíma gondoskodik. Az árnyékolást redőnyök segítik, a kiváló hőszigetelésről korszerű falazat és vastag külső szigetelés, valamint hőszigetelt nyílászárók gondoskodnak. A lakáshoz tartozik egy körülbelül 20 m²-es burkolt terasz, valamint egy mintegy 265 m²-es, automata öntözőrendszerrel ellátott, növényekkel beültetett saját kert, amely különleges értéket képvisel a mindennapokban. Az ingatlan frissen felújítva, tisztán kifestve, azonnal költözhető állapotban kerül átadásra. A bérleti díj havi 511 811 Ft + áfa, számla ellenében. A szerződéskötéshez három havi bérleti díjnak megfelelő kaució szükséges. A bérbeadás minimum 2–3 éves időtartamra lehetséges, rövidebb időszakra nem kiadó. A bérlő kötelezettsége a közjegyzői okirat elkészíttetése. A közös költség havi 15 000 Ft, amely a társasház üzemeltetésével és karbantartásával kapcsolatos szolgáltatásokat tartalmazza. A víz-, gáz- és villamosenergia-fogyasztás egyedi mérők alapján kerül elszámolásra, amelyet a bérbeadó havonta számláz. Az ingatlan Aranyhegy csendes, családbarát részén található, ahol a természet közelsége és a nyugodt lakókörnyezet találkozik a város kényelmével. A környéket modern családi házak és igényes lakóparkok jellemzik, kiváló infrastruktúrával, könnyű megközelíthetőséggel és jó közlekedési kapcsolatokkal, így ideális választás mindazok számára, akik kompromisszumok nélkül szeretnének élni Budapest egyik legélhetőbb városrészében.
https://budapest.ingatlan.hu/alberlet/kiado/lakas/budapest-iii-ker/650-ezer-ft;107-negyzetmeter;5-szoba;tegla-epitesu/11613523