Az értékesítő:
Fülöp Tamás
+36 70 412 3534

Eladó családi ház Pácsony, 27 000 000 Ft, 92 négyzetméter

27 000 000 Ft
családi ház, 92 négyzetméter
Egész szobák:
3
Ingatlan állapota:
Azonosító:
11613132
Értékesítés típusa:
eladó
Ingatlan típusa:
családi ház
Jelleg:
Családi ház
Település:
Pácsony
Alapterület:
92
Telekterület:
2054
Ár:
27 000 000 Ft
Fűtés jellege:
Egyéb
Terasz:
Nincs
Erkély:
Van
Melléképület:
Nincs
Pince:
Nincs
Parketta:
Nincs
Kábel TV:
Nincs
Telekterület típusa:
négyzetméter
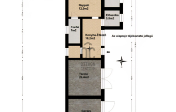
Eladó Pácsony központjában egy tágas, élhető családi ház, ahol minden adott egy nyugodtabb, praktikusabb élethez . Ha olyan helyet keresel, ahol van tér létezni, de nem kell egy kastélyt fenntartani, akkor ez jó eséllyel betalál. Alapok: - Telek: 2054 m² - Ház: nettó 146 m² (garázzsal/ tárolóval) Lakórész 92m² A ház: Jól átgondolt, élhető terek – nincs benne „minek ez ide?” helyiség. - 2 nagyméretű szoba - nappali - tágas konyha-étkező - fürdő WC-vel - kamra - előtér - terasz - tároló - garázs Itt nem kell oldalazva közlekedni. Van hely. Műszaki: - központi fűtés, vegyestüzeléssel - 2021-ben tetőcsere és felújítás - stabil, karbantartott állapot A kert (ahol jön a csavar): Gyümölcsfák, díszfák – és egy smaragdfa (császárfa) ültetvény. Ez nem csak jól hangzik: kitermelés után újra kihajt, nem kell újra telepíteni – és a fűtést is biztosítja. Magyarul: a kert nem csak szép, hanem dolgozik is helyetted. Elhelyezkedés: - Vasvár: 5 km - Zalaegerszeg: 20 km A település központjában, mégis nyugodt környezetben. Közösség: Összetartó falu, ahol még köszönnek egymásnak – de nem állnak meg fél órára minden kapuban (csak ha szeretnéd). Összefoglalva: Ez egy olyan ház, ami nem akar többnek látszani, mint ami. Cserébe viszont azt nagyon jól tudja. Tér, kert, működő megoldások – és egy kis önfenntartás érzés. Ha ez fontos, érdemes megnézni. Kedvezményes lakástámogatások igénybe vehetők. Teljes körű ügyintézés, bankfüggetlen hiteltanácsadás, energetikai és villamos biztonsági vizsgálatok szervezése, ügyvéd ajánlás – ha kell, nem maradsz egyedül a papírmunkával.
https://budapest.ingatlan.hu/elado/haz/pacsony/27-millio-ft;92-negyzetmeter;3-szoba;egyeb-futes/11613132