Az értékesítő:
Szűcs Adrienn
+36 70 698 5169

Eladó családi ház Lulla, 100 000 000 Ft, 380 négyzetméter

100 000 000 Ft
családi ház, 380 négyzetméter
Építőanyag:
Tégla
Egész szobák:
10
Komfort fokozat:
Összkomfort
Fűtés módja:
Villany
Ingatlan állapota:
Azonosító:
11612619
Értékesítés típusa:
eladó
Ingatlan típusa:
családi ház
Jelleg:
Családi ház
Település:
Lulla
Alapterület:
380
Telekterület:
7323
Ár:
100 000 000 Ft
Szintek száma:
1 szint
Fűtés jellege:
Villany
Kor:
21-50 éves
Klíma:
Van
Telekterület típusa:
négyzetméter
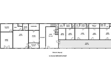
Megvételre kínálok Lullán, a Balaton déli partjához közeli településen, egy 380 m2-es lakóházat. Az ingatlan kialakítása alkalmassá teszi kereskedelmi szálláshelyként, munkásszállásként, rehabilitációs/rekreációs/egészségügyi központként való hasznosításra. 34 férőhellyel rendelkezik jelenleg, 14 szobának van saját fürdőszobája. A konyha előírásoknak megfelelően került kialakításra. Két épület helyezkedik el egymás mellett: az utca felőli vályog, mely a hátsó téglaépület építésekor (2001) részben felújításra került, 4 éve új tetőt, a legutóbbi felújítás során pedig új burkolatokat kapott. A hátsó, kétszintes tégla épület teljeskörű felújítása az elmúlt 2 évben történt. Az épület új tetőt kapott napelemmel (47 kW). A felújítás kiterjedt a villany-, és vízvezetékek, valamint a burkolatok és szaniterek cseréjére is. Az ingatlan villany, víz közművekkel rendelkezik jelenleg. ( A gáz visszakötésére van lehetőség. ) Fűtése hűtő-, fűtő klímákkal, elektromos fali fűtőpanelekkel megoldott. A házat körülölelő 7323 m2-es telek is számtalan lehetőséget kínál. A terület enyhe lejtésű, szabályos téglalap alakú. Lulla távolsága a Balatontól mindössze 16 km. További információkért, megtekintésért kérem hívjon! Az energetikai tanúsítvány készítése folyamatban van, amint rendelkezésre áll, úgy azzal a hirdetés frissítésre kerül. Referencia szám: M326047
https://budapest.ingatlan.hu/elado/haz/lulla/100-millio-ft;380-negyzetmeter;16-szoba;villany-futes/11612619