Az értékesítő:
Garamvölgyi Gábor
+36 20 289 0849

Kiadó ipari ingatlan Szolnok, 1 663 772 Ft/hónap, 1 501 négyzetméter

1 663 772 Ft/hónap
ipari ingatlan, 1 501 négyzetméter
Ingatlan állapota:
Átlagos
Azonosító:
11612459
Értékesítés típusa:
kiadó
Ingatlan típusa:
ipari ingatlan
Jelleg:
Egyéb
Település:
Szolnok
Alapterület:
1501
Ár:
1 663 772 Ft/hónap
Telekterület típusa:
Négyzetméter
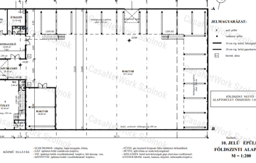
<p>A<strong> Szolnoki CasaNetWork ingatlaniroda</strong> bérlésre kínál egy 1501 m<sup>2</sup>-es csarnok raktárt!</p><p>Az ingatlan főbb jellemzői:</p><p>- Szolnok Északi részén helyezkedik el, az <strong>M4-es autóút felhajtójától 1900 méterre</strong></p><p>-2000 m<sup>2</sup>-en található,<strong> kerítéssel teljesen körbehatárolt</strong></p><p>- a közművek közül<strong> víz, villany, vezetékes gáz és csatorna</strong> is bevezetésre került</p><p>-az épület két ütemben épült, első ütemben a hátsó raktár rész, majd 2. ütemben épült a raktár elé a <strong>kétszintes irodai rész</strong></p><p>- funkció: a földszinten kiszolgáló helyiségek és raktár, az emeleten irodák és galériás kialakítással raktár. A vertikális közlekedést lépcsők biztosítják. Felmenő szerkezet acél vázszerkezet</p><p>-a<strong> falazat szerelt jellegű, hőszigetelt burkolattal </strong></p><p>- <strong>tetőfedés szerelt jellegű, hőszigeteléssel</strong></p><p>- nyílászáró szerkezetek: <strong>a kapuk lamellás, felfelé gördülő kivitelű elektromos működtetéssel</strong></p><p>- gépészet: az épület irodai része fűthető gázkazánnal, a raktár fűtetlen</p><p>- elektromos: a világítás, a <strong>klíma</strong> és a kapu mozgatás </p><p>- víz-csatorna: a vizesblokkokhoz kiépítve; fali tűzcsap van </p><p>- szellőzés: a belső terű helyiségeknél kapcsolóról indított szellőzés</p><p> - gyengeáram: informatika, <strong>riasztó, kamera, tűzjelző</strong></p><p> - a földszinten két gépészeti/közmű akna található; a 4. jelű épületből két védőcső került lefektetésre a közmű aknáig</p><p>- a rakodási terület térkővel burkolt, ipari minőségben</p><p>- a bérleti idő minimum 12 hó, amennyiben hamarabb kerül felmondásra a kaució összege nem jár vissza, két havi kaució szükséges a bérléshez</p><br /><p> Amennyiben a fenti<strong> 155806709  -es azonosító számú</strong> kiadó ipari ingatlan, vagy bármely kínálatunkban található ingatlan felkeltette érdeklődését, kérem hívjon bizalommal!</p><p>/A hirdetésben szereplő információk a megbízótól kapott adatok alapján készültek./</p><p>Irodánk teljes körű szolgáltatással áll ügyfelei rendelkezésére: hitelügyintézés, ügyvédi szolgáltatás, ingatlan értékbecslés, energetikai tanúsítvány készítése.<br /></p><p><strong>CasaNetWork - Ingatlanban otthon vagyunk!</strong></p> <br />
https://budapest.ingatlan.hu/kiado/ipari_ingatlan/szolnok/2-millio-ft;1501-negyzetmeter;egyeb-jellegu;nincs-megadva-tulajdonviszony/11612459