Az értékesítő:
Casa Futura Kft.
+36 70 399 0399

Eladó családi ház Fót, 149 900 000 Ft, 127 négyzetméter

149 900 000 Ft
családi ház, 127 négyzetméter
Egész szobák:
4
Ingatlan állapota:
Épülő
Azonosító:
11610915
Értékesítés típusa:
eladó
Ingatlan típusa:
családi ház
Jelleg:
Családi ház
Település:
Fót
Alapterület:
127
Telekterület:
556
Ár:
149 900 000 Ft
Szintek száma:
Földszintes
Fűtés jellege:
Egyéb
Telekterület típusa:
négyzetméter
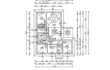
Fótújfalun kínálunk megvételre egy 2026-ban épülő, egyszintes, nettó 127 nm alapterületű, plusz 15,8 nm terasszal rendelkező, modern családi házat. A praktikus elosztásnak köszönhetően nappali + 3 szoba, étkezős konyha kamrával, fürdőszoba, 2 külön WC, mosókonyha, közlekedő és előszoba kerül kialakításra. Az ingatlan magas műszaki tartalommal készül: vasalt beton alapozás, 30 cm-es teherhordó falak, beton födém, 12 cm-es homlokzati szigetelés. A külső nyílászárók korszerű 3 rétegű műanyag ablakokkal, a tető betoncserép fedést kap. A ház korszerű, energiatakarékos hőszivattyús rendszerrel és padlófűtéssel kerül átadásra, 3×20A villany kapacitással, kb. 70 kiállással. A burkolatok és szaniterek a megadott értékhatárig szabadon választhatók, így a belső terek saját igény szerint alakíthatók. A falak festve, a helyiségek alapfelszereltséggel, dekorfóliás beltéri ajtókkal készülnek. A vételár tartalmazza az utcafronti kerítést kapukkal, a járdát, az 5 m-es kocsibeállót, valamint a teraszt is. Igény esetén számos extra megoldás kérhető (pl. riasztó, egyedi burkolatok, speciális gépészet, plusz kiállások), így az ingatlan teljes mértékben személyre szabható.
https://budapest.ingatlan.hu/elado/haz/fot/150-millio-ft;127-negyzetmeter;4-szoba;egyeb-futes/11610915