Az értékesítő:
Berki Katalin
+36 70 789 1998

Eladó családi ház Nyíregyháza, 79 000 000 Ft, 109 négyzetméter

79 000 000 Ft
családi ház, 109 négyzetméter
Építőanyag:
Tégla
Egész szobák:
3
Komfort fokozat:
Dupla komfort
Fűtés módja:
Gáz
Ingatlan állapota:
Kitűnő
Azonosító:
11609755
Értékesítés típusa:
eladó
Ingatlan típusa:
családi ház
Jelleg:
Családi ház
Település:
Nyíregyháza
Alapterület:
109
Telekterület:
360
Ár:
79 000 000 Ft
Szintek száma:
1 szint
Fűtés jellege:
Cirkó
Kor:
Új építésű
Terasz:
Nincs
Pince:
Nincs
Telekterület típusa:
négyzetméter
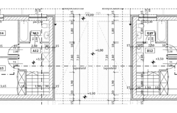
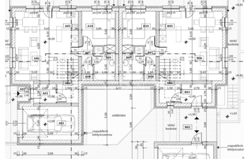
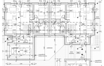
Eladó Nyíregyháza Nyírszőlős részén a Kollégium utcai lakóparkban 2025-ben épülő új A++ besorolású 3 szobás garázsos lakóparki ikerház. (K/2) Ára: 79.000.000 Ft. Az ingatlan alap méretei: - a telek mérete: 360nm, - a ház alapterülete: 109nm. Az épület hasznos alapterülete 109nm melyben található: - 3 szoba, - amerikai konyhás nappali, - kamra, - fürdőszoba, - WC, - közlekedő, - előszoba, - garázs (17nm), - terasz (12nm). Az új építésű lakóparki ikerház várhatóan 8 hónapon belül kerül átadásra, mely korszerű hő takarékos építészeti megoldásokat alkalmazva készül el. A falazata 30-as téglából épül, mely 15 cm-es EPS homlokzati hőszigetelést kap. A födém szerkezete 15 cm-es ásványszálas hőszigetelésű lesz, így az egész épület energetikai szempontból A++ kategóriájú. Az épületben áram, víz, gáz és csatorna bekötésre kerül. Az épület padlófűtéssel, radiátoros fűtéssel vagy kérés esetén a kettő kombinációjával készül el, mely gáz cirkó kazánról fog működni. Ezen kívül még 2 db hűtő-fűtő klíma is rendelkezésre fog állni. A melegvíz ellátásról szintén a gáz cirkó kazán gondoskodik. Az ingatlan ideális választás lehet mindazok számára, akik új építésű, modern energiatakarékos otthont keresnek nyugodt kertvárosi környezetben. Fontos! Az ingatlan per és tehermentes, 2 gyerekes CSOK Plusz is igénybe vehető! Figyelem! Minőségi kivitelezés és választható belső burkolatok, szaniterek. 2025-ös energetikai szabványoknak megfelelő modern megoldások. A belső elrendezés igény szerint módosítható. Ha felkeltette érdeklődését, hívja irodánkat bizalommal! Ha hitelre van szüksége éljen ingyenes, személyre szabott hitel ügyintézési szolgáltatásunkkal is.
https://budapest.ingatlan.hu/elado/haz/nyiregyhaza/79-millio-ft;109-negyzetmeter;3-szoba;cirko-futes/11609755