Az értékesítő:
Bugyi Zsuzsa
+36 30 409 2510

Eladó családi ház Nyíregyháza, Oros, 101 500 000 Ft, 112 négyzetméter

101 500 000 Ft
családi ház, 112 négyzetméter
Építőanyag:
Tégla
Egész szobák:
3
Ingatlan állapota:
Épülő
Azonosító:
11608697
Értékesítés típusa:
eladó
Ingatlan típusa:
családi ház
Jelleg:
Családi ház
Település:
Nyíregyháza
Alapterület:
112
Telekterület:
475
Ár:
101 500 000 Ft
Fűtés jellege:
Geotermikus
Kor:
1-5 éves
Telekterület típusa:
négyzetméter
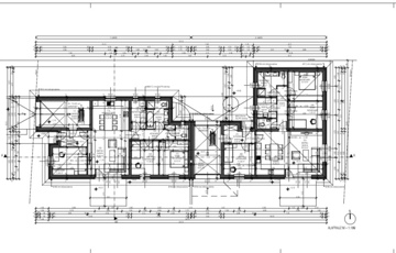
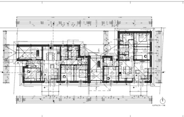
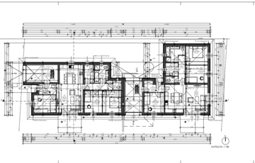
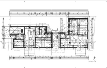
ÚJ ÉPÍTÉSŰ IKERHÁZ ELADÓ NYÍREGYHÁZA–OROSON! Nyíregyháza kedvelt, folyamatosan fejlődő részén, Oros városrészben kínálunk megvételre egy 112 nm-es, nappali + 3 szobás, modern ikerházat, amely ideális választás családok számára. Az ingatlan 475 nm-es telken helyezkedik el, nyugodt, kertvárosias környezetben, kiváló megközelíthetőséggel. Főbb jellemzők: 95  nm hasznos alapterület + 16,5 nm garázs. Nappali + 3 külön nyíló szoba Amerikai konyhás nappali Tégla falazat, korszerű építési technológia Hőszivattyús fűtési rendszer (energiahatékony megoldás) Modern, letisztult kialakítás Saját kert, ideális családi pihenéshez Új építés – alacsony fenntartási költségek Energetikai besorolás: A++ Az ingatlan kivitelezése jelenleg folyamatban van, várható átadás: 2026 év vége, így még lehetőség van bizonyos műszaki tartalom és belső kialakítás egyedi igény szerinti alakítására. Tökéletes választás mindazok számára, akik egy modern, energiatakarékos otthont keresnek csendes, mégis jól megközelíthető környéken. További információért és megtekintésért keressen bizalommal. Az ingatlan azonosítója: 100024Érdeklődni: +36304092510 Az ingatlan azonosítója: 100024 Érdeklődni: +36304092510
https://budapest.ingatlan.hu/elado/haz/nyiregyhaza/102-millio-ft;112-negyzetmeter;3-szoba;geotermikus-futes/11608697