Az értékesítő:
Kovács Julianna
+36 70 329 0242

Eladó családi ház Monok, 5 999 000 Ft, 72 négyzetméter

5 999 000 Ft
családi ház, 72 négyzetméter
Egész szobák:
4
Komfort fokozat:
Fél komfort
Ingatlan állapota:
Felújítandó
Azonosító:
11607376
Értékesítés típusa:
eladó
Ingatlan típusa:
családi ház
Jelleg:
Családi ház
Település:
Monok
Alapterület:
72
Telekterület:
2820
Ár:
5 999 000 Ft
Erkély:
Nincs
Telekterület típusa:
négyzetméter
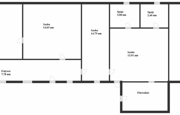
Monok főutcáján kínáljuk eladásra ezt a 2820 nm-es, sok lehetőséget rejtő telket, rajta egy 1942-ben épült, 72 nm-es családi házzal. Az ingatlan teljeskörű felújítást igényel, így kiváló alapot nyújt azok számára, akik saját elképzeléseik szerint szeretnének otthont vagy vidéki birtokot kialakítani. A ház főbb jellemzői: 72 nm-es lakóépület 1942-ben épült, masszív szerkezet Teljes felújítást igényel – szabadon alakítható Ipari áram rendelkezésre áll A víz az ingatlan előtt található, bekötése könnyen megoldható Gázcsonk és szennyvíz az udvaron található, így a közművesítés előkészítve A ház kiváló lehetőség azoknak, akik saját ízlésük szerint szeretnék felújítani és modernizálni a lakóteret. Különleges melléképületek: A telken több, ma már ritkaságnak számító, értékes melléképület található: Száraz, kőboltozatos borospince, két helyiséggel (2× boltolt) – borászati, tárolási vagy hobbi célokra Füstölő – hagyományos élelmiszerkészítéshez Disznóól és tyúkol – gazdálkodásra, állattartásra alkalmas Ezek az épületek nemcsak hangulatot és autentikus vidéki karaktert adnak a birtoknak, hanem valódi funkcionális értéket is képviselnek. A telek adottságai: A 2820 nm-es terület mérete és elhelyezkedése miatt kiválóan alkalmas: gazdálkodásra kertészkedésre állattartásra hobbi- vagy turisztikai célú fejlesztésekre akár egy hangulatos vidéki vendégház kialakítására A telek sokoldalúsága miatt az ingatlan remek választás befektetőknek, vidéki életre vágyóknak vagy azoknak, akik egy saját elképzelések szerint formálható ingatlant keresnek.
https://budapest.ingatlan.hu/elado/haz/monok/6-millio-ft;72-negyzetmeter;4-szoba;nincs-megadva-futes/11607376