Az értékesítő:
Borbély Ádám
+36 30 631 7883

Eladó családi ház Pilisborosjenő, 219 000 000 Ft, 521 négyzetméter

219 000 000 Ft
családi ház, 521 négyzetméter
Építőanyag:
Tégla
Egész szobák:
13
Komfort fokozat:
Dupla komfort
Ingatlan állapota:
Felújítandó
Azonosító:
11606846
Értékesítés típusa:
eladó
Ingatlan típusa:
családi ház
Jelleg:
Családi ház
Település:
Pilisborosjenő
Alapterület:
521
Telekterület:
815
Ár:
219 000 000 Ft
Szintek száma:
1 szint
Kor:
21-50 éves
Erkély:
Van
Telekterület típusa:
négyzetméter
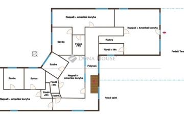
Nagycsaládnak, bérbeadásra, szálláshelynek, csendes, szép környezetben! Pilisborosjenőn, csendes, panorámás, szép utcában, 815m2-es telken eladó egy lakhatásra, bérbeadásra, vendéglátó vállalkozás céljára egyaránt ideális, 521m2-es, két szintes, jelenleg részben felújítandó, részben felújított, több apartmanra osztott, panzió besorolású ingatlan, hatalmas hátsó terasszal. A két szintes épület felső szintje 4 apartmanra osztott, melyek 4 különálló lakóegységként is használhatóak, de nagyobb családnak, több generációnak is ideális lakhatást kínálnak. Az apartmanok közül az egyik 3 szobás, 2 darab 2 szobás, és egy pedig studió kialakítással rendelkezik. Esztétikailag remek állapotnak örvendenek, műszakilag kisebb befejező munkálatokra szorulnak. Több szoba ablaka is hegyvidéki panorámás kilátással rendelkezik. Az alsó szint jelenleg felújítandó állapotban van, itt akár további apartmanok, lakótér kialakíthatóak, de vállalkozási, akár ügyfélfogadási, vagy más üzleti célra is remekül hasznosítható. A két szint külön külső bejáraton át is elérhető, de belső lépcső is összeköti őket. A ház elrendezése optimalizálásával akár 15-16 szoba is kilakítható! Az épület mögött, a lakótérhez kapcsolódó, hatalmas, mintegy 100m2-es terasz kapott helyet, mely délnyugati tájolásának köszönhetően a nap nagy részében kellemes, világos, ugyanakkor árnyékolása is megoldott. Az épületre ebben az irányban napelemek is fel vannak szerelve. Az alsó szinthez diszkrét bejárattal egy 50m2-es, száraz, boltíves pince is csatlakozik, mely akár tárolásra, raktározásra, de vendéglátási célú hasznosítás esetén hangulatos étkező, vagy boros pince kilakítására is remekül alkalmas. Az épület jól megépített, kifejezetten állékony, homlokzata az egyik irányból felújításra került. Teteje remek állapotnak örvend, gázbeton cseréppel fedett. Közművek közül minden rendelkezésre áll, víz és csatornahálózatra az épület rá van kötve, áramhoz 4 darab mérőhely kilakított, jelenleg 2 darab, 3X32 amperes mérő van felszerelve. Az ingatlanban jelenleg a fűtésrendszer kialakítása nem került befejezésre, a csövezés és a radiátorok nagy része a helyükre kerültek, azonban a hőtermelő berendezés telepítése még szükséges. Telken belül 3 autó parkolása megoldott, ezen kívül a kis forgalmú utcán további 2 autó tud a ház előtt parkolni. Az ingatlan környezete csendes, kertvárosi, a Pilis hegyvidéki, nyugodt hangulatát sugározza, ugyanakkor a Fő utca felől pár perc sétával, vagy fél perc vezetéssel elérhető. Az utca szép házakkal beépült, a porták mindegyike rendezett. A környéken minden elérhető, amire a mindennapokban szükség lehet, óvoda, iskola, üzletek, szolgáltatások, rendelő, kikapcsolódási, sportolási, túrázási lehetőségek sétatávolságban rendelkezésre állnak. Tömegközlekedéssel is remekül elérhető az ingatlan, a 3 percre található autóbuszmegállóból Volán és BKK járat is közlekedik Üröm, a Szentlélek tér, és az Árpád hídi buszpályaudvar irányban. Mérete, elrendezése és panzió besorolása okán ezt az ingatlant kiemelten ajánlom nagy család, több generáció együttélésére, rövid, vagy hosszú távú, apartmanonkénti, szobánkénti bérbeadásra, üzleti célú hasznosításra is - melyhez a lehetőségek itt mind rendelekzésre állnak! Irányára: 219 M Ft Irányár: 219000000 Ft Referencia szám: HZ037845
https://budapest.ingatlan.hu/elado/haz/pilisborosjeno/219-millio-ft;521-negyzetmeter;14-szoba;nincs-megadva-futes/11606846