Az értékesítő:
Cziráki Tamás
+36 30 446 1280

Eladó családi ház Budapest II. ker, 2 500 000 Euro, 623 négyzetméter

2 500 000 Euro
családi ház, 623 négyzetméter
Építőanyag:
Tégla
Egész szobák:
7
Ingatlan állapota:
Felújított
Azonosító:
11601541
Értékesítés típusa:
eladó
Ingatlan típusa:
családi ház
Jelleg:
Családi ház
Település:
Budapest II. ker
Alapterület:
623
Telekterület:
956
Ár:
2 500 000 Euro
Szintek száma:
3 szint
Fűtés jellege:
Központi
Kor:
11-20 éves
Telekterület típusa:
négyzetméter
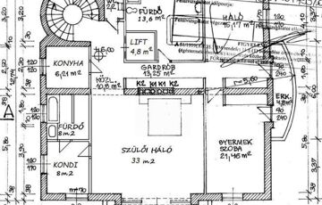
P21765 II. KLASSZIKUS RÓZSADOMBON BELTÉRI ÚSZÓMEDENCÉS, ÁTÉPÍTETT, MODERNIZÁLT, LIFTES VILLA ÚJRA ELADÓ! II. Rózsadombon 2008-ban épült, 2022-ben felújított, átépített, modernizált, minden mai luxussal ellátott 600 m2-es, beltéri úszómedencés, liftes, klasszikus stílusú villa 956 m2-es, ápolt kertben eladó. Az ingatlan jellemzői: - presztízs értékű hely (diplomáciai övezet) - csendes mellékutca, de közel a buszos főútvonalhoz. - 600 m2 beépített összterület, 35 m2-nyi terasz, - 3 szinten 3 generáció együttélésére is alkalmas kialakítás, - 2 vagy 3 generáció együttélésére vagy iroda-lakás kombinációra, nagykövetség és rezidencia kialakítására is alkalmas beosztás. - hatalmas, kandallós nappali, szeparált konyha étkező, 4 háló + 120 m2-es tetőtéri apartman (nappali, háló, konyha, fürdő), - 5 fürdőszoba, - 2008-ban épült, 2017-ben külső-belső esztétikai felújítás, új konyha, tetőtér burkolása 2022- ben teljes felújítás átépítés. - hőszigetelt falak, - 2 rétegű fa nyílászárók szúnyoghálókkal, - blue labrador gránit és tölgy parketta burkolatok, - feszített víztükrű, ellenáramos úszómedence, - szauna, - dupla garázs + kerti autóbeállók, - teljesen sík, de fűthető kocsifelhajtó, - kamerás kültéri megfigyelőrendszer. - örök értékű befektetés. 2022-ben történt felújítás: - gázfűtés mellett hőszivattyús hűtés-fűtés kiépítése, - napelemek felszerelése, - okos ház vezérlés telepítése, - lift beépítése, - válaszfalazás, helyiségek újraosztása, - teljes körű villanyszerelési munkálatok (vezetékek, kapcsolók, lámpatestek cseréje), - tetőtéri lakás kialakítása (nappali, háló, fürdő, konyha, új terasz) Befektetőknek is ajánljuk! Ha megveszi könnyen bérbe tudja adni családi-vagy nagyköveti rezidencia vagy elegáns cégközpont céljára. Kivételes lehetőség tökéletes elhelyezkedéssel a klasszikus Rózsadombon. Ne hagyja ki, jöjjön és nézze meg mielőbb! ******************************************************************* English description: II. CLASSIC RÓZSADOMB VILLA WITH INDOOR SWIMMING POOL, REBUILT, MODERNIZED, WITH ELEVATOR NOW BACK ON THE MARKET! (ID: P21232) Located in District II, Rózsadomb, this 600 sqm classic-style villa with an indoor swimming pool and elevator, built in 2008 and fully renovated, rebuilt, and modernized in 2022, equipped with all contemporary luxury features, is for sale on a well-maintained 956 sqm landscaped plot. Property Features: • prestigious location (diplomatic quarter) • quiet side street, yet close to a main bus route • 600 sqm total built area, 35 sqm of terraces • layout suitable for multi-generational living across 3 levels • suitable for 2–3 generations, office–residence combination, embassy or ambassadorial residence • spacious living room with fireplace, separate kitchen with dining area, 4 bedrooms + 120 sqm attic apartment (living room, bedroom, kitchen, bathroom) • 5 bathrooms • built in 2008; interior and exterior aesthetic renovation in 2017, new kitchen; attic finishing; complete renovation and reconstruction in 2022 • thermally insulated walls • double-glazed wooden windows with mosquito screens • blue labrador granite and oak parquet flooring • tension-surface counter-current indoor swimming pool • sauna • double garage + additional outdoor parking spaces • completely level yet heated driveway • outdoor camera surveillance system • timeless investment value Renovation completed in 2022: • installation of heat pump cooling and heating system in addition to gas heating • installation of solar panels • smart home control system • elevator installation • partition wall restructuring and redistribution of rooms • complete electrical system upgrade (wiring, switches, lighting fixtures replaced) • creation of attic apartment (living room, bedroom, bathroom, kitchen, new terrace) Recommended for investors as well! After purchase, the property can be easily rented out as a family residence, ambassadorial residence, or an elegant corporate headquarters. An exceptional opportunity with a perfect location in the classic Rózsadomb area. Do not miss it — come and view it as soon as possible! ********************************************** Описание на русском языке II. КЛАССИЧЕСКАЯ ВИЛЛА В РАЙОНЕ РОЖАДОМБ С КРЫТЫМ БАССЕЙНОМ, ПЕРЕСТРОЕННАЯ, МОДЕРНИЗИРОВАННАЯ, С ЛИФТОМ СНОВА В ПРОДАЖЕ! (ID: P21232) В районе II, Рожадомб, предлагается к продаже классическая вилла площадью 600 кв.м с крытым бассейном и лифтом, построенная в 2008 году и полностью отремонтированная, перестроенная и модернизированная в 2022 году, оснащённая всеми современными элементами роскоши, расположенная на ухоженном участке площадью 956 кв.м. Характеристики недвижимости: • престижное расположение (дипломатический квартал) • тихая боковая улица, при этом рядом с основной автобусной магистралью • общая застроенная площадь 600 кв.м, террасы площадью 35 кв.м • планировка на 3 уровнях, подходящая для совместного проживания нескольких поколений • подходит для проживания 2–3 поколений, комбинации офис–жильё, размещения посольства или резиденции посла • просторная гостиная с камином, отдельная кухня со столовой, 4 спальни + мансардные апартаменты 120 кв.м (гостиная, спальня, кухня, ванная) • 5 ванных комнат • построена в 2008 г.; эстетическая внутренняя и внешняя реконструкция в 2017 г., новая кухня, отделка мансарды; полная реконструкция и модернизация в 2022 г. • теплоизолированные стены • деревянные окна с двойным остеклением и москитными сетками • отделка из гранита Blue Labrador и дубового паркета • крытый бассейн с противотоком и зеркальной поверхностью воды • сауна • двойной гараж + дополнительные парковочные места во дворе • полностью ровный подъезд с системой подогрева • наружная система видеонаблюдения • инвестиция с неизменной ценностью Реконструкция, выполненная в 2022 году: • установка теплового насоса для отопления и охлаждения в дополнение к газовому отоплению • установка солнечных панелей • система управления «умный дом» • установка лифта • перепланировка внутренних перегородок и перераспределение помещений • полная модернизация электросистемы (замена проводки, выключателей, светильников) • создание мансардных апартаментов (гостиная, спальня, ванная, кухня, новая терраса) Рекомендуется также для инвесторов! После приобретения объект легко сдаётся в аренду как семейная резиденция, резиденция посла или элегантная штаб квартира компании. Исключительная возможность с идеальным расположением в классическом районе Рожадомб. Не упустите шанс — приходите на просмотр как можно скорее! * Kertszint 143,4 m2: uszoda(74,8 m2), dupla garázs(41 m2), lift (4,8 m2), szauna(2,75), zuhany(2,18), WC (1,64), kamra(4,2), háztartási helyiség(8,35), közlekedő(3,5), kertkapcsolat; belmagasság: 2.70 m * Magasföldszint 144,5 + 17,6 m2: nappali (55,74m2), konyha-étkező (20,72), hálószoba (28 ), lift (4,8 m2), gardrób (9,44), zuhanyzó (3,9), szélfogó (6,21), közlekedő (7,8), lépcsőház (8), terasz (12,8), terasz (4,8); belmagasság: 2.80 m * Emelet 144,35 + 17,6 m2: 3 hálószoba (33 m2; 21,46 m2; 15,17m2), 2 fürdőszoba (13,6 m2; 8m2), konyha (6,21), gardrób (13,25), lift (4,8), külön WC (2,2), közlekedő (10,8) terasz (12,8), terasz (4,8), lépcsőház (8); belmagasság: 2.80 m * Tetőtér 110 + 10 m2: nappali + 1 szobás apartman fürdővel, konyhával, terasszal További képek, részletes leírás megtekintéséhez másolja be az alábbi hivatkozást böngészőjének címsorába: www.ingatlanonki.hu/21765
https://budapest.ingatlan.hu/elado/haz/budapest-ii-ker/948-millio-ft;623-negyzetmeter;7-szoba;kozponti-futes/11601541