Az értékesítő:
Mohácsi Mária
+36 70 660 1636

Eladó lakás Kecskemét, 73 999 999 Ft, 73 négyzetméter

73 999 999 Ft
lakás, 73 négyzetméter
Építőanyag:
Tégla
Egész szobák:
3
Ingatlan állapota:
Azonosító:
11601416
Értékesítés típusa:
eladó
Ingatlan típusa:
lakás
Település:
Kecskemét
Alapterület:
73
Ár:
73 999 999 Ft
Emelet:
2. emelet
Fűtés jellege:
Cirkó
Építési év:
50 évesnél régebbi
Erkély:
Van
Lift:
Van
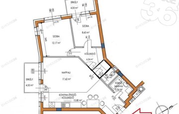
Kecskeméten, a Balaton utcában, 2015-ös építésű, szigetelt társasházban lévő, 73,5 m2-es, nappali +2 szobás, II. emeleti, 2 erkélyeslakás ELADÓ garázzsal, saját tárolóval!! Jellemzők: - 2015-ös építésű, kedvelt lakópark - homlokzat szigetelt - beépített konyhabútor gépekkel - előszoba szekrény - parkettás szobák +tágas nappali - nagyon kedvező rezsi költség - gáz-cirkó fűtés - 65m2-es lakótér - 2 db erkély + 8,5 m2 - klíma - műanyag nyílászárók redőnnyel, szúnyoghálóval - földszintről induló lift - mélygarázs, további 6.000.000 Ft - saját tároló további 3.000.000Ft - alacsony rezsi Figyelem! Az adatlap megbízónktól kapott adatok alapján készült. Pontosságáért felelősséget nem tudunk vállalni! Amennyiben a hirdetés felkeltette az érdeklődését és kérdése lenne a lakással kapcsolatban, akkor kérem forduljon hozzám bizalommal! Az iroda legfrissebb, aktuális kínálatát a HOUSE36 saját weboldalán találja!
https://budapest.ingatlan.hu/elado/lakas/kecskemet/74-millio-ft;73-negyzetmeter;3-szoba;tegla-epitesu/11601416