Az értékesítő:
Kovács Julianna
+36 70 329 0242

Eladó iroda/üzlethelyiség Sátoraljaújhely, 139 999 000 000 Ft, 265 négyzetméter

139 999 000 000 Ft
iroda/üzlethelyiség, 265 négyzetméter
Azonosító:
11600874
Értékesítés típusa:
eladó
Ingatlan típusa:
iroda/üzlethelyiség
Jelleg:
Üzlethelyiség
Település:
Sátoraljaújhely
Alapterület:
265
Ár:
139 999 000 000 Ft
Lift:
Nincs
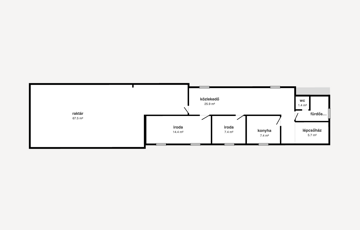
Sátoraljaújhely központi részén, kiváló megközelíthetőséggel eladó egy több ütemben épült, folyamatosan fejlesztett és karbantartott ingatlan, amely jelenleg festékboltként működik. Az épület kialakítása és felszereltsége miatt szinte bármilyen vállalkozásra, szolgáltatásra vagy akár lakhatásra is ideális választás. Épület és kialakítás Az ingatlan első része 2014-ben épült, masszív szerkezettel. 2020–2022 között tetőtér-beépítéssel bővült, így két szinten, jól elkülöníthető terekkel rendelkezik. A tetőtér világos, tágas, könnyen alakítható lakótérré, irodává vagy szolgáltató helyiséggé. A burkolatok újszerű állapotúak, igényes kivitelezéssel. A nyílászárók hőszigetelt műanyag ablakok, amelyek kiváló fényviszonyokat biztosítanak. Az épület egészére jellemző a világos, tiszta, rendezett megjelenés. Műszaki felszereltség Fa tüzelésű kazán biztosítja a fűtést. Villanybojler gondoskodik a meleg vízről. Ipari árammal ellátott, teljesen új elektromos hálózat. Kamerarendszer kiépítve, több ponton rögzít. Stabil, jó állapotú épület, korszerű műszaki háttérrel. Udvar és melléképületek Az udvar 70%-a burkolt, így könnyen tisztán tartható, jól kihasználható. Az ingatlanhoz tartozik 3 darab melléképület, amelyek raktárnak, műhelynek vagy tárolónak is kiválóak. Külön található egy könnyűszerkezetes műhely, kb. 5 méteres belmagassággal, ami ritka és rendkívül sok lehetőséget kínál (autószerelés, gyártás, raktározás stb.). Az udvaron könnyű parkolási lehetőség biztosított, akár több autó számára is. Üzleti lehetőségek Az ingatlan jelenleg festékboltként működik, így azonnal folytatható a tevékenység. Igény esetén a tulajdonos 17 millió Ft értékű árukészletet is elad, ami kiváló indulási lehetőség vállalkozóknak. Az épület elhelyezkedése miatt bármilyen vállalkozás számára ideális: kereskedelem szolgáltatás műhely iroda raktár lakás + vállalkozás egy helyen Elhelyezkedés Sátoraljaújhely központi része Kiváló megközelíthetőség Jó láthatóság, nagy átmenő forgalom Üzleti szempontból kiemelten előnyös lokáció Kinek ajánlom? Vállalkozóknak, akik komplex, többfunkciós ingatlant keresnek Befektetőknek, akik értéknövelő lehetőséget látnak benne Olyanoknak, akik lakhatást és vállalkozást egy helyen szeretnének megoldani Bárkinek, aki egy jó állapotú, sok lehetőséget rejtő, központi ingatlant keres Helység lista: Csarnok: 84,2 nm 1.műhely: 16,5 nm 2.műhely: 50,5 nm Üzletrész: 115 nm Raktár: 10,1 nm Lépcsőház: 6,8 nm Raktár: 67,5 nm Közlekedő: 25,9 nm 1.Iroda: 14,4 nm 2.Iroda: 7,4 nm Konyha: 7,4 nm Lépcsőház: 5,7 nm wc: 1,4 nm Fürdő: 4 nm Rengeteg plusszal tudunk szolgálni! Kérem keressen bizalommal és nézzük meg együtt !
https://budapest.ingatlan.hu/elado/iroda/satoraljaujhely/139999-millio-ft;265-negyzetmeter;uzlethelyiseg-jellegu;nincs-megadva-berendezett/11600874