Az értékesítő:
Vajda Eszter
+36 70 374 8484

Eladó üdülő/nyaraló Lepsény, 32 500 000 Ft, 38 négyzetméter

32 500 000 Ft
üdülő/nyaraló, 38 négyzetméter
Építőanyag:
Tégla
Egész szobák:
2
Azonosító:
11600197
Értékesítés típusa:
eladó
Ingatlan típusa:
üdülő/nyaraló
Jelleg:
Üdülő
Település:
Lepsény
Alapterület:
38
Telekterület:
1223
Ár:
32 500 000 Ft
Építési év:
21-50 éves
Telekterület típusa:
Négyzetméter
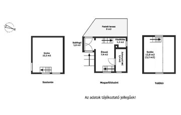
Felújított nyaraló eladó Lepsény szőlőhegyen - medencével, dézsafürdővel, csendes környezetben! Eladó Lepsény szőlőhegyén egy 38 m2-es, korábban pince-présházként funkcionáló, felújított, 3 szintes nyaraló, amely tökéletes választás a pihenésre vágyóknak. Az épületben 2 szoba található, egy a szuterén szinten és egy a tetőtérben, 4 fő kényelmes pihenésére ideális. Az épülethez nagy fedett terasz kapcsolódik. A biztonságról kamera és riasztórendszer gondoskodik. A fűtés elektromos panelekkel megoldott. A gondozott, zárt udvarban medence és dézsafürdő is helyet kapott. Nyugodt, csendes környezet, zöldövezet. A vízellátás fúrt kútról biztosított. A Balaton csupán 10 km távolságra található - autóval 10-15 perc alatt megközelíthető! További információért és megtekintésért keressen telefonon! Referencia szám: M300913
https://budapest.ingatlan.hu/elado/udulo_nyaralo/lepseny/33-millio-ft;38-negyzetmeter;2-szoba;udulo-jellegu/11600197