Az értékesítő:
Dr. Serhalné Zsiray Tünde
+36 20 258 5752

Eladó lakás Veszprém, 75 000 000 Ft, 71 négyzetméter

75 000 000 Ft
lakás, 71 négyzetméter
Építőanyag:
Tégla
Egész szobák:
1
Komfort fokozat:
Összkomfort
Ingatlan állapota:
Azonosító:
11599723
Értékesítés típusa:
eladó
Ingatlan típusa:
lakás
Település:
Veszprém
Alapterület:
71
Ár:
75 000 000 Ft
Emelet:
3. emelet
Fűtés jellege:
Cirkó
Erkély:
Nincs
Kertkapcsolat:
Nincs
Lift:
Nincs
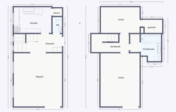
Otthon Veszprém egyik kedvelt környékén, a Bakonyalja városrészen Ha olyan lakást keresel, ami családalapításhoz ideális, elég tágas a kényelmes mindennapokhoz, ugyanakkor befektetésként is stabil választás, akkor ezt az ingatlant mindenképp érdemes megnézned. Egy rendezett társasház 3. emeletén található ez a 71 m²-es, téglaépítésű, belső kétszintes lakás, amely 2003–2004-ben épült, és azóta is folyamatosan karbantartott, jó állapotú. A lakás nyugati tájolású, így világos, kellemes élettereket biztosít a nap nagy részében. Az otthon 1 nappalival és 2 kisebb szobával rendelkezik, elosztása kifejezetten praktikus. Az alsó szinten előszoba fogad, innen nyílik a konyha kamrával, egy külön WC, valamint a tágas nappali, amely nagy ablakokkal és franciaerkéllyel kapcsolódik a külső térhez. A felső szinten egy előtérből érhető el egy nagyobb szoba franciaerkéllyel, egy kisebb szoba gardróbbal, valamint egy nagy méretű, kádas fürdőszoba, amely kényelmes megoldást nyújt akár egy család számára is. A lakás műanyag nyílászárókkal felszerelt, redőnyökkel ellátva. A fűtésről saját gázkazán gondoskodik radiátoros hőleadással. Klíma nincs, azonban a jó tájolás és a kialakítás miatt a lakás jól szellőztethető. A biztonságról beépített riasztórendszer gondoskodik, a tárolást pedig egy közös alagsori tároló segíti. Parkolás a ház előtt ingyenesen megoldott. 2010-ben amikor mostani tulajdonosai beköltöztek, sor került a burkolatok cseréjére, valamint méretre gyártott bútorok beépítésre. A LAKÁS AZONNAL KÖLTÖZHETŐ. Fenntartása kifejezetten kedvező: a gázköltség az elmúlt két év átlaga alapján havi 7.000–8.200 Ft, a közös költség 11.000 Ft, így a lakás gazdaságosan üzemeltethető, ami befektetők számára is különösen vonzó. A környék Veszprém egyik kedvelt része, ahol iskola, óvoda, üzletek könnyen elérhetők. A belváros és a buszpályaudvar néhány perces autóútra található, a vasútállomás pedig mindössze 10 perc sétával megközelíthető. A környéken sok a zöldterület, parkok és játszóterek teszik igazán családbaráttá a környezetet. Az ingatlan megvásárlásához Otthon Start és CSOK Plusz hitel is igénybe vehető. Ez a lakás tökéletes választás, ha hosszú távra tervezel, nagyobb élettérre vágysz, vagy egy biztos, jól kiadható befektetést keresel. Ne gondolkodj sokáig – nézd meg személyesen a hét bármelyik napján, és találd meg benne az új otthonod! Szeretettel várom hívásod! Dr. Serhalné Zsiray Tünde 06 20 258 5752 Dream-Ing Álomból Otthont!
https://budapest.ingatlan.hu/elado/lakas/veszprem/75-millio-ft;71-negyzetmeter;3-szoba;tegla-epitesu/11599723